Přehrát audio verzi
Světlo, soukromí a zahrada: Atelier Ose mění skromný dům v otevřený domov
00:00
00:00
1x
- 0.25x
- 0.5x
- 0.75x
- 1x
- 1.25x
- 1.5x
- 2x

Dělat ve Francii u státních drah s sebou dříve neslo výhody. I v časech, kdy to ještě nebývalo samozřejmostí, byla to práce „pod penzí“. A k zaměstnaneckým benefitům se počítala též nárok na vlastní bydlení. Domek, vystavěný podnikem. Přesně takhle pak přišel na svět i Maison SD, dům stojící ve francouzském La Roche-sur-Yon. Byl to dům zaměstnance železnice. Tím se ovšem vazba stavby na minulost u dráhy téměř vyčerpává.
Je totiž třeba zaskočit do roku 2023, kdy se architekti ze studia Atelier Ose Architecture k zakázce na stavební úpravu tohoto domu. Pod vedením šéf-architekta Théo Viviena měli dohlédnout na to, aby se stavba s minulostí dotkla současných standardů a dočkala se i hezké budoucnosti. Předpoklady k tomu totiž jistě měla. Ačkoliv k velkým zrovna nepatřil, měl potenciál k růstu dál do zahrady. Ostatně, ta zahrada právě zvyšovala atraktivitu celého domu. A na tom i současný projekt svou vizi staví.
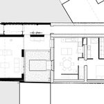
Lidé z Atelier Ose se tu soustředili na nové rozvržení funkcí, a vedli precizní rekonstrukci a rozšíření směrem do zahrady. Dům se tak nově rozvíjí kolem patia, které přivádí světlo hluboko do každé místnosti dříve poněkud zšeřelého domu, a zároveň chrání každodenní život před nežádoucími pohledy zvenčí. Není přitom bez zajímavosti, že čelní fasáda domu – kromě nezbytné renovace – zůstala téměř beze změn. Stavební růst a rozšíření se tu zkrátka nepojilo se ztrátou původního charakteru.
Směrem do ulice je to tedy pořád ten mile „starý“ dům drážního zaměstnance, jak si jej sousedé pamatují. Do dvora už jsou ale ty zásahy o dost patrnější. Přístavba ve tvaru zalomeného písmene L, stylově obložená trapézovým plechem a zakončená šikmými střechami, nyní propojuje interiér s krytou terasou. Ten přístavek sice ukusuje ze zahrady, ale činí tak nepoměrně citlivě.
Dům, který se otevřel světlu
Je to ostatně patrné i z toho, že přístavba zároveň zachovává dva vzrostlé olivovníky, po předchozích majitelích. Olivovníky mohou růst stovky let, a tak by asi bylo škoda je likvidovat jen kvůli takové malichernosti, která ve výsledku zvýšila užitnou plochu domácnosti na 137 metrů čtverečních. Z té vyčíslené rozlohy to tak úplně nevyzní, ale majitelé domu si skutečně polepšili. I díky tomu, že chytře řešená přístavba sice nenásobí metry rozlohy, ale násobí možnosti. V případě hezkého počasí se skrze přístavbu stává „obyvatelnou“ celá zahrada. A zájem obyvatel o pobyt venku nevyprchá ani s příchodem podzimu, díky kryté terase.
Světlo to domu teď přichází celý rok, skrze malé patio, napříč celým půdorysem. Za ním zadní fasáda „dýchá“, když se místnosti otevírají směrem k zahradě a krytá terasa zachycuje ticho. Přístavba, která rámuje výhledy, má pečlivě volená okna omezující oslnění, aniž by přitom nějak ubírala jas prostoru. Výrazové prostředky, abychom použili vzletných slov architektů, tu byly užity střídmé.
Přístavba je provedena kompletně v úrovni přízemí a pomocí hry šikmých střech se harmonicky začleňuje do celkové siluety stávající zástavby. Svým současným výrazem a záměrným materiálovým kontrastem doplňuje a zvýrazňuje původní dům. Za trapézovým plechem se prý dá vidět odkaz „industriálního dědictví železniční historie“, ale pravdou bude spíš to, že jde o materiál kvalitou i cenou odpovídající povaze záměr.
Plechový obklad dodává fasádě přístavby texturu a hloubku, zatímco střecha přebírá stejný antracitový odstín jako břidlicová krytina původního domu. Na jihozápadní straně chrání přesahy střech obytné prostory před nadměrným letním slunečním zářením a zajišťují příjemnou teplotu uvnitř po celý rok. Uvnitř se velká eloxovaná hliníková posuvná okna otevírají do hlavního obytného prostoru, kde dominuje klavír majitele, a podporují plynulý přechod mezi interiérem a exteriérem.
Zadní fasáda přístavby v tomto pojetí není chápána jako konec celého domu, ale jen jako jakýsi závěs mezi interiérem a zahradou. Přičemž se řazení místností – těch původních i těch z přístavby – jeví jako čitelný a jasně rozlišený sled prostorů kolem patia. To pak, a jeho terasa, fungují jako druhý obývací pokoj, když to počasí dovolí. Je docela lákavé si představit, jak se tu žije. Sedět na dvorečku patia, ve stínu olivovníků popíjet čaj, zatímco zevnitř domu zní klavír, a vyhlížet u toho na někoho, kdo se lopotí mezi záhonky zahrady.
Zásah architektů tu byl, v poměru k zastavěné ploše a rozměrům původního domu, vlastně docela malý. Výsledky, nové možnosti, jsou po jejich úpravě ale opravdu výrazné.
Údaje o projektu
| Název projektu: | House SD |
| Typ projektu: | komplexní rekonstrukce, rodinný dům |
| Architektonické studio: | Atelier Ose Architecture |
| Lokalizace: | La Roche-sur-Yon, Francie |
| Vedoucí architekt: | Théo Vivien |
| Dodavatelé materiálu: | Technal, DuPont, Schneider Electric, Arcelor Mittal |
| Klient: | soukromá osoba |
| Užitná plocha: | 137 m2 |
| Zahájení projektové fáze: | 2023 |
| Rok dokončení (finalizace): | 2024 |












































Sdílet / hodnotit tento článek