
Bratislava má za sebou silnou historii průmyslového města, ale dnes se svým industriálním dědictvím příliš nechlubí. Vysloužilé areály bývalých závodů a objekty tovární výroby tu jdou k zemi, aby udělaly místo novější a momentálně potřebnější zástavbě. Světlou výjimkou z tohoto pravidla o demolici a růstu se stal rozsáhlý projekt komplexní přestavby, modernizace areálu takzvané Mlynice. Ta byla součástí zóny obklopené výrobními halami Istrochemu a Dusla, v pozadí dokreslovaná siluetou bratislavské teplárny. Ne, zrovna příjemné místo na pohled to tedy určitě nebylo. A ani ona sama původní Mlynica. Ta vznikla v šedesátých letech minulého století, jako součást podniku LSH (Ľahkých stavebných hmôt). Připravovaly a míchaly se tu příměsi pro betonové kvádry.
Betonová krusta bez energie
Když tu výroba z kraje devadesátek ustala, objekt chátral. Svým důkladným stavebním pojetím, konstrukčním zpracováním železobetonového skeletu, ale vzbuzoval naděje na nějaké další pokračování. Byl to zajímavě zpracovaný monolit. Dá se říct, že po dvě dekády čekal na nějakou novou, ne až tak intenzivní formu využití. Té se mu dostalo poté, co ho chopili profesionálové ze studia GutGut. Do staré skořápky zasadili nový život. Vypracovali dost zásadní návrh rekonverze celé stavby, a v rámci komplexních úprav převedli areál na dočista nový model alternativního prostoru. V Mlynici tak našlo místo „flexibilní pracovní prostředí“, vytvořila se tu stylová plocha pro konání nejrůznějších událostí (eventů, urban-marketů) a samozřejmě také loftových bytů.
Prostor pro život. Ale dá se tu opravdu bydlet?
Zatímco ve Státech jsou podobné projekty, vycházející z úpravy průmyslových areálů do obytné podoby časté a populární, ve střední Evropě se tento model nového využití starých objektů teprve učíme. A zpracování, které představují GutGut, je v tomto ohledu skutečně důstojnou inspirací. Nás teď však víc než uniformní prostor železobetonového kolosu Mlynice, vyrůstající z brownfieldu, bude zajímat jen jedna jeho dílčí část. Konkrétně pak podoba loftu, který našel v popisovaném lokalitě své místo. Loftu, který se může jevit jen jako pomyslná třešnička na dortu, ale dodává celé průmyslové rekonverzi na adrese Turbínovej ulice nový rozměr. Protože to, s čím ponejvíc úpravy industriálních budov směrem k obývání zápasí, je sám fakt obyvatelnosti a přiměřené kvality bydlení.
Originální loft mezi patry
Nelehké úlohy, vsadit do tuhého skeletu příjemné a moderní bydlení, se zhostili architekti Juraj Hubinský, Peter Kuklica a Martin Smerek. Jejich práce se silnými prvky dialogu mezi starým a novým začala na úrovni pátého patra Novej Mlynice, mezi sloupy a schodišti vymezujícími původně otevřenou plochu, jejíž část transformovali na dvouúrovňový/trojpodlažní loftový byt. Nechtěli přitom, aby se loft o užitné ploše 73 metrů čtverečních zříkal svého původu. Proto ponechali viditelné a přiznané surové betonové konstrukce, odhalené rozvody a prvky z černého kovu. Což ale neznamená, že by byt zůstal nelidský a studený. Pobyt zde je naopak velmi osvěžující, díky řadě chytrých řešení. Neobvyklé místo se totiž podbízelo k realizaci alternativních nápadů.
Výhled má cenu přes den
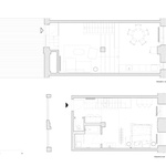
Zaskočit by nás ale nemělo, že celý loft je strukturován v přísné vertikále, a jeho členění se opírá o logiku požadavků obyvatele. Vstup do bytu se nachází na spodní úrovni „přízemí“. Najdeme tu šatník, koupelnu, toaletu a ložnici. Schodiště nás pak posune výš, do obývacího pokoje s jídelnou a kuchyní. Proč zrovna takové uspořádání? Z vyšší úrovně je totiž možné přehlédnout město až k hranicím Karpat, a to je výhled, který oceníte spíš přes den. Tedy z místností, ve kterých ve světlé části dne trávíte více času. Usínat můžete bez výhledu. Z obývacího pokoje se pak můžete dostat také na prostornou terasu, kterou doceníte zvláště ve slunečných dnech. Tenhle průnik vzdálené volné krajiny do betonové skořápky ale není ojedinělý.
Černá a bílá na pozadí industriální šedi
Interiér loftu vychází z kontrastu mezi hrubým stavebním materiálem a citlivě lidskou truhlářskou prací, zámečnickými a kovářskými kousky. Jako by neexistovala pevná hranice mezi tím, co vytvořil stroj, a co už šikovné ruce. Neomítnutý beton stěn a litý beton podlah, pokrytý epoxidovou vrstvou laku, ustalují pojem prostoru, do kterého prorůstají jednotlivé originální kousky designového nábytku. Příkladem je třeba umývadlo, položené na ocelových nožkách a umístěné mimo box zrcadla. Architekti si dali hodně záležet na tom, aby loftu zachovali jeho dynamiku a flexibilní pojetí.
Příkladem je třeba závěs na pojezdové drážce, který může zastřít polovinu bytu a dodat mu úplně jiný charakter. Nebo zrcadla v zabudované šatníku, které opticky zvětšují obytný prostor. Vsazené celo-černé schodiště dává pocit výšky, a přitom nepůsobí rušivě. Jeho kovové zpracování spíš nahrává dojmu křehkosti. Nášlapy stupňů se světlým překližkovým obkladem (z břízy) jsou protikladem tmavé překližce kuchyňského boxu, kterému k černočerné barvě pomohlo namoření. Souboj černé, bílé a šedé tlumí výrazné osvětlení, lustrů zavěšených nad postelí a jídelním stolem, vše v kombinaci s dodatečným liniovým a reflektorovým osvětlením.
Interiér loftu v Novej Mlynici je podle architektů „osvěžujícím solitérním zadáním“, které kladlo důraz na surovou estetiku zrcadlící charakter industriální lokality, ve vztahu k podobě objektu i osobnosti klientky.
Údaje o projektu
| Název projektu: | Mlynica Loft Apartment |
| Typ projektu: | Rekonverze v průmyslové stavbě, loft |
| Architektonické studio: | Juraj Hubinský + Kuklica x Smerek Architekti |
| Lokalizace: | Turbínová ulica, Bratislava, Slovensko |
| Vedoucí projektu: | Juraj Hubinský, Peter Kuklica, Martin Smerek |
| Dodavatelé materiálu: | Wood & Interiers s.r.o. |
| Klient: | soukromá osoba |
| Využitelná plocha: | 73 m2 |
| Rok dokončení: | 2018 |






































































Sdílet / hodnotit tento článek