
Je to pořádný kus železniční historie. Protože první pražce na úseku železnice Badner Bahn začaly sloužit už devětadvacátého září roku 1866. Po čase na ní navázalo prodloužení, kde však supící parní lokomotivy ještě střídala koněspřežná dráha. A proč to všechno? Aby vídeňská honorace nemusela do lázeňského Badenu komplikovanou cestu řešit jinak. Těch devětadvacet kilometrů trati tu bylo vystaveno čistě kvůli jejich komfortu.
Dnes už je to samozřejmě jiné, a provoz na trati zajišťuje společnost Wiener Lokalbahnen (WLB), která už na pojetí hromadné přepravy vyšší střední třídy svou reputaci nestaví. Ovšem starý dům, který stál těsně u kolejí „bádenské“ trati, si tohle všechno pamatoval. A snad proto, že byl tak blízko kolejí, nabízel se jako parcela k prodeji na vídeňské poměry za dobrou cenu. Jeho noví majitelé se pak rozhodli, že starý objekt nahradí novostavbou.
S tím, že zachovají původní dispozice. To v praxi obnášelo ponechat rozsáhlou zahradu tak, aby dál obstupovala nově vystavěný dům, který svým profilem kopíruje staré základy. S dovětkem, že ta novostavba se dál děsně přimyká k tělesu železniční trati. Pokud jde o širší dispozice, ty dál připomínají léta dávno minulá a počátky Badner Bahn. Je tu rozsáhlý parčík, další rozsáhlá zahrada, vila kdysi patřící průmyslníkovi.
Celé to místo je zajímavé. Protože je současně exponované a přitom introvertní. A to se přenáší i do charakteru nově rozplánovaného domu. Který je (a zároveň není) skrytý. Protože z jedné strany, od tramvajové zastávky, je sice prakticky neviditelný a schovaný v zelení – ale z té druhé je vystrčený až k oblouku trati, a vedou kolem něj koleje. A ta dvojakost, kontrastní protiklady domu viděného a neviděného, se propsaly i do projektu, který vyhotovili Balissat Kaçani a Jann Erhard.
Nevídaný dům od Vídně
Ten dům je v projektu pojmenován prostě, jako Dům blízko Vídně. Ale můžete si být jisti tím, že takových okolo Vídně mnoho nenajdete. Stavba, která si pro sebe osobuje úzký prostor mezi dvěma světy, mezi introvertní zahradou a extrovertním prostorem kolejiště, je totiž svým stavebním pojetím výsostně originální. Šetří okny, a přitom je bohatá na výhledy. A okna, respektive stěny, klade tam, bystě čekali spíš okna. Ten dům definuje to obojaké sousedství i podobu celé zahrady.
Anebo jak říkají sami autoři projektu: „Zahrada tvoří koncepční protějšek dopravní infrastruktury a je dosažitelná a vnímatelná pouze skrz dům.“
Dům zároveň odděluje a propojuje zahradu a dopravní infrastrukturu. A není to jediné, čím se vymyká běžným normám. I ze stavebního hlediska překvapuje. Třeba tím, že je postaven s 55 centimetrů silnou vnější stěnou, z izolačního betonu. Tato zdánlivě archaická konstrukční metoda je přitom otevřená difúzi a nemá žádné vrstvy. V interiéru i exteriéru je to stejné – co je viditelné navenek, to je viditelné i dovnitř. Objekt s nevelkou zastavěnou stopou tak působí až monstrózně. Jako bunkr.
A nemálo k tomu přispívá i to, že všechny vnitřní stěny a stropy jsou z 15 centimetrů silného železobetonu. Potrubí pro vytápění v zimě a chlazení v létě je uloženo přímo v podlahových deskách, bez jakýchkoli dalších povrchových konstrukcí. Takže celý dům je jedna velká monolitická, tepelně aktivovaná hmota. Dům, malý svou zastavěnou plochou a přitom monumentální svou materiální povahou, přesto není tak jednolitý, jak se zdá být. V mezeře mezi domem a zdí se zahradní zeď zasouvá do budovy a vymezuje vlastní vstup.
Rozpůlená stavba
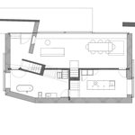
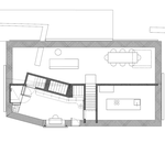
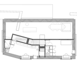
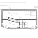
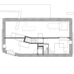
V tom vstupním bodě se vlastně dvě tváře domu setkávají. Aby se, hned za vstupem, opět oddělily. Jako kdyby domem podélně běžela dělicí čára. Jedna část je totiž bez předělů otevřená až do hřebene střechy. Druhá podélná polovina na ni pak navazuje propojenými místnostmi a komplikovanějším uživatelským schématem vnitřních prostor.
Velká místnost, prostora bez předělů, tvoří výchozí bod pro dvě schodiště. Jedno je umístěno centrálně, druhé periferně. Propletené do sebe jako dvojitá šroubovice, vstupují do druhé, plné poloviny domu se šesti místnostmi ve třech podlažích orientovaných směrem ke kolejím. Každá z těchto místností má stejnou podlahovou plochu a proporce, velké pevné prosklené okno směřující na sever ke kolejím a dveře otevírající se směrem od hluku pro větrání. Různé délky schodišť vytvářejí různé výšky těchto jinak identických prostor a jemně je odlišují.
Ten vnitřní prostor se rozprostírá přes celou polovinu domu, odvrácenou od kolejí. Za zasouvací zdí se prostor otevírá do zahrady, na své delší straně. S rozměry více než 10 metrů na výšku, téměř 12 metrů na délku a sotva více než 3 metry na šířku tvoří prázdnou polovinu. A když dáme k popisu vyjádření architektů, podávají to následovně: „Zahradní prostor je konstruktivně i fenomenologicky vnímán jako interiérový i exteriérový prostor.“
Dvě schodiště přitom poskytují přístup do dvou téměř nezávislých, nepropojených částí. Z vstupního prostoru vede obvodové schodiště do dvou místností za sebou, vzdálených od sebe půl patra. Centrální schodiště vede přes místnost do další místnosti v horní části domu. Ačkoli se všechny tyto místnosti nacházejí nad sebou a vedle sebe, jsou vnímány jako velmi vzdálené od sebe. Propojením schodišť se obě části rozprostírají na všech čtyřech stranách a rozprostírají se přes všechna tři patra domu.
Divoké, že? Tyto specifické prostorové vlastnosti vytvářejí nepředvídatelné a rozmanité možnosti pro využití neutrálních místností a zároveň tak reagují na životní okolnosti, které téměř pominuly nebo které možná nikdy nenastanou. Dům blízko Vídně, napůl v otevřeném světě s výhledy na kolejiště staré Badner Bahn, a druhou polovinou pohlcený v introvertním světě zahrady, je skutečně neobvyklý. Ne však nehezký.
Architekti Kaçani a Erhard tu jasně demonstrovali, že se odvážná řešení nemusí pojit s projekty velkých proporcí. Celé to originální a nezvyklé bydlení má charakter pevnější, než masivní zdi.
Údaje o projektu
| Název projektu: | House near Vienna |
| Typ projektu: | novostavba rodinného domu |
| Architektonické studio: | Balissat Kaçani + Jann Erhard |
| Lokalizace: | Baden bei Wien, Rakousko |
| Vedoucí architekti: | Balissat Kaçani, Jann Erhard |
| Statika: | Zivilingenieur DI Andrzej Glogowski |
| Akustika: | K2 Bauphysik |
| Hlavní dodavatel stavby: | Goran Pavic |
| Tesařské a truhlářské práce: | Tischlerei Martin Pichler |
| Instalatérské práce, rozvody: | S.P.R.I.N.C.L.A |
| Dodavatelé materiálu: | Hansgrohe, JUNG, Laufen, Baxi, Devon & Devon, Forster, Schüco |
| Klient: | soukromá osoba |
| Rok dokončení (finalizace): | 2024 |
| Rozměry: | 100 m2 |





































































Sdílet / hodnotit tento článek