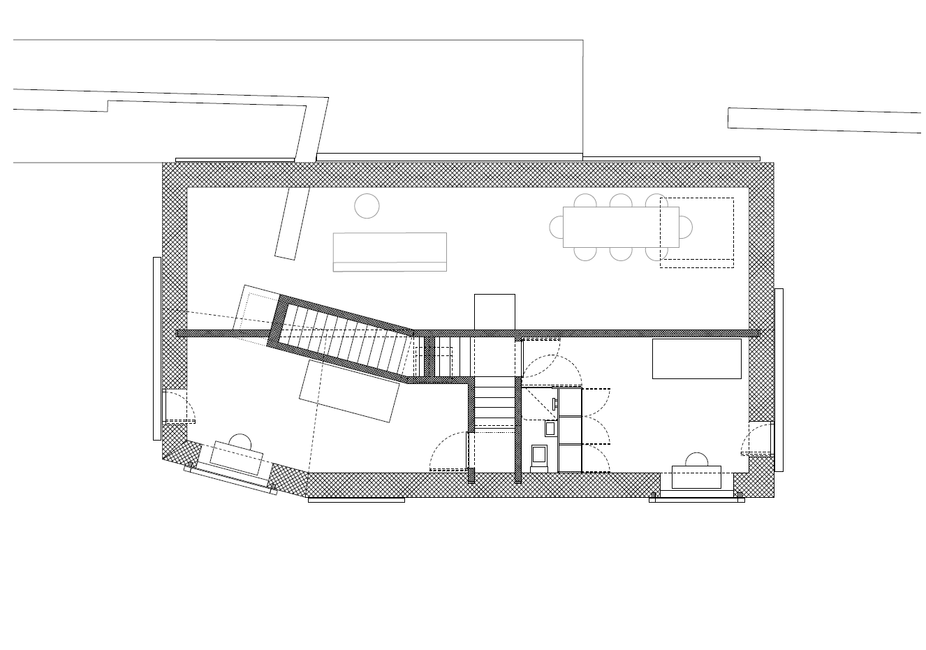
Stojí u kolejí, stěny má půl metru široké. Vilka u Vídně je plná překvapení
Stojí u kolejí, stěny má půl metru široké. Vilka u Vídně je plná překvapení. Zdroj: Jann Erhard, Balissat Kaçani
Sdílet na Facebooku Sdílet na Pinterestu
42 / 50
REKLAMA