
Bytová nouze přiměla architekty přemýšlet nad typizací již před druhou světovou válkou, známé jsou na tomto poli experimenty zlínské firmy Baťa. Ihned po válce přistoupili architekti pod tíhou nároků dvouletého plánu k hledání ideálních, pro hromadnou produkci použitelných, typových dispozic.
Výsledkem těchto snah byly funkční a směrné plány Stavba bytů ve dvouletce z roku 1947, které dále rozvíjely tzv. vzorové projekty, jež se staly základem pro známou řadu T, schválenou v roce 1951. Domy typu T byly stále zděné, v některých případech používaly základních prefabrikátů.
Od roku 1953 byly realizovány některé experimenty, jež pracovaly s montovaným železobetonovým skeletem, paralelně s nimi – na přelomu let 1953 a 1954 byl postaven první celostěnový panelový dům v tehdejším Gottwaldově – známý typ G 40 (ve fotogalerii), dvojice architektů Hynka Adamce s Bohumíra Kuly. Tento typ byl dále rozvíjen a takzvaná „géčka“ jsou dodnes převažující konstrukční soustavou na mnoha českých sídlištích, a to i přesto, že v Bratislavě byl velmi brzy po typu G 40 vyvinut konkurenční systém BA – celostěnový s vnitřními rámy.
 G57 Zdroj: Byty včera, dnes a zítra. Praha 1976
G57 Zdroj: Byty včera, dnes a zítra. Praha 1976
Pětipodlažní typ G 40 tenkrát ještě nebyl projektován, jak bylo zvykem později, jako dům sestavitelný z opakovatelných „sekcí“, takže jej poznáme poměrně snadno. Je vždy pětipodlažní, se dvěma vchody. Z každého vchodu je přístupno 20 bytů, vždy čtyři na patře, tři dvoupokojové a jeden třípokojový. Jednalo se o tzv. malorozponovou soustavu, tj. světlá vzdálenost nosných panelů byla 3,6 metrů. Nosné stěny jsou příčné (tloušťky 200 mm) z betonových panelů vylehčených kruhovými dutinami. Obvodový plášť byl sestaven z vícevrstvých betonových panelů (tloušťky 200 mm) s izolační vrstvou pazderobetonu.
Tento typ řešil úskalí montované celostěnové panelové konstrukce vůbec poprvé, a proto je také v detailech jednoduše rozpoznatelný. Horizontální spáry překrývaly profilované sloupky, suterény byly řešeny individuálně – buď jako monolit nebo z panelů. První série se vyznačují mnoha ozdobnými detaily, zatímco ty pozdější spolu s opouštěním estetiky socialistického realismu po roce 1954 od kovaných mříží, domovních znamení, říms a atik přecházely k jednoduššímu vzhledu. Variantou G 40 byl stejný, jen o patro nižší typ G 32 (číslo je zde stejně jako u G 40 odvozeno od počtu bytů v domě). Gottwaldovští navázali typem G 55, jež dokázal zapojit do půdorysného schématu rohovou sekci, potřebnou právě v urbanistických ensemblech socialistického realismu. Tato varianta však přišla právě v době, kdy socialistický realismus přestal být preferovaným stylem, takže rohových typů G 55 najdeme v republice jen několik. Jako varianta G 56 je někdy označován brněnský experiment, jež však nebyl dále rozvíjen, naopak největším úspěchem, alespoň co do počtu postavených domů, byl typ G 57.
 G57 Zdroj: Projekt Paneláci.cz
G57 Zdroj: Projekt Paneláci.cz
Známou „gépadesátsedmičku“ však nerozeznáme snadno – během neuvěřitelně dlouhé doby, kdy byla produkována, doznala mnoha změn a krajových variant. Vždy se však jedná o tři až pětipodlažní objekty již beze spár překrytých sloupky, s příčným nosným systémem s rozponem 3,6 m. Nosné panely jsou 20 cm silné, vnější pak 24 cm, izolační vrstvou je zde 20 cm silná vrstva struskopemzobetonu. Typ G 57 byl již řešen ne jako komplexní dům, ale jako po sekcích neskládatelná jednotka. Každá sekce měla na patře tři dvoupokojové byty, z nichž ke dvěma patřily lodžie, jež se propisovaly na jednu z fasád v typickém rytmu tři svislé pásy s okny, dva svislé pásy s lodžiemi.
Gottwaldovští však uvažovali o dalších inovacích – po poměrně nezajímavém typu G 57 přišli rychle s experimenty G 58 a G 59, které přes veškerou inovativnost konstrukčního řešení i neotřelý vzhled fasád do hromadné výstavby neprorazily. Na jejich neúspěchu však mohla mít podíl i politická rozhodnutí - v létě 1958 na XI. sjezdu KSČ zazněl požadavek postavit do roku 1970 1 200 000 bytů, z toho 474 000 ve státní výstavbě. V takové situaci bylo třeba nasadit osvědčená řešení a stavět.
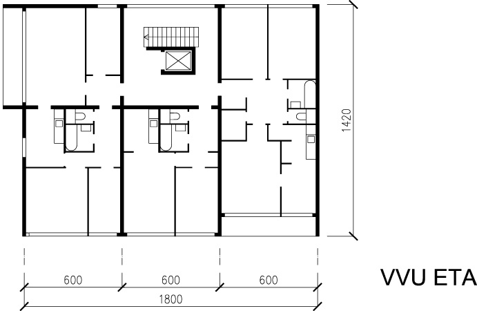
 VVU ETA Zdroj: Zdeněk Kuna, Proměny české architektury, Praha 1987
VVU ETA Zdroj: Zdeněk Kuna, Proměny české architektury, Praha 1987
Od roku 1962 byly uváděny do výstavby nově schválené typy T 06 B, T 07 B a T 08 B. Nejčastěji dnes najdeme na sídlištích malorozponový typ T 06 B a velkorozponový typ (tedy s rozponem 6 m) T 08 B. Typy T 06 B a T 08 B přinesly oproti G 57 konečně i byty o třech a čtyřech pokojích. Do poloviny sedmdesátých let tyto typy postupně převládly a vytlačily, i když ne zcela, typ G 57. U těchto nových typů byla uplatněna zásada funkčního rozdělení svislých stěnových konstrukcí na nosné (příčné stěny vnitřní) a tepelně izolační nenosné (obvodové parapetní stěny). Pouze příčné stěny štítové plní zároveň funkci nosnou i izolační. Příčné nosné stěny jsou z plných železobetonových panelů, u T06B 150 mm tlustých, u T07 a T08B 200 mm. Příčné štítové panely mají tloušťku 300 mm a jsou zhotoveny ze struskopemzobetonu nebo keramiky. U stropních panelů pro T08B je užito předpětí elektroohřevem. Podélné obvodové stěny jsou ze struskopemzobetonových panelů (tloušťka 300 mm) osazovaných na konzoly ze svařovaného ocelového profilu T. U typu T06B se uplatňují také obvodové panely keramické (tloušťka 300 mm).
Prvkové konstrukční soustavy
Od šedesátých let sílil tlak na nové, takzvaně „otevřené“ konstrukční soustavy, jež by dovolily kombinovat více modulů a spíše než s danými objemy pracovat s prvky (proto také někdy název „soustava prvková“). Tyto nové konstrukční soustavy, ve zkratce NKS, byly vyvíjeny od roku 1968 1968 a zaváděly se do praxe po roce 1972. NKS často kombinovaly různé rozpony a umožňovaly volněji pracovat s jednotlivými sekcemi, v detailu pak přinesly nové skladby panelů, plášťů střech či oken. Řadíme mezi ně soustavy HKS 70, B 70, NKS G, BA NKS, PS 69, doplněné o soustavu se zahraniční licencí Larsen-Nielsen a VVÚ-ETA, vyvinutou z typu T 08 B. Později je rozšířila tzv. řada P. Realizovány byly pouze P1.11 (Morava, Praha), P1.14 (Slovensko) a P1.21 (severní Čechy). Jednalo se o malorozponové soustavy, tří nebo čtyřmodulové.
Cíle zavádění těchto soustav si mírně protiřečily – na jedné straně měly sjednotit některé rozměry prvků a technologické postupy tak, aby bylo možno využívat jednotného montážního, výrobního a dopravního zařízení. Na druhou stranu měl širší sortiment modulových rozměrů zajistit projektantům volnější práci s dispozicemi bytů. Pro krátkou dobu realizace převážně v druhé polovině 80. let tak už soustavy nenašly širšího uplatnění, s výjimkou těch používaných na obřích sídlištích, jakými bylo Jižní Město v Praze, kterému kraluje Larsen-Nielsen a VVÚ-ETA. Řadu P pak najdeme ve variantě OP 1.11 například na sídlišti Nový Barrandov, kde ji poznáme podle typické inovace – panely mají tvar písmene U, oknu chybí horní překlad. Dalším unikátem je varianta OP 1.31 na severní Moravě s bizarně tvarovanými lodžiemi. Jako jedna z mála byla tato soustava používána dále, při „zamaskování“ panelových spar, v modifikované podobě v devadesátých letech.
Tento článek vznikl v rámci projektu „Panelová sídliště v České republice jako součást městského životního prostředí: Zhodnocení a prezentace jejich obytného potenciálu“, podpořeného Ministerstvem kultury v rámci Programu aplikovaného výzkumu a vývoje národní a kulturní identity (NAKI),identifikační kód projektu: DF13P01OVV018.















 
















Sdílet / hodnotit tento článek