Přehrát audio verzi
Dům s kavárnou v historickém centru města. Zahřeje na těle i na duši
00:00
00:00
1x
- 0.25x
- 0.5x
- 0.75x
- 1x
- 1.25x
- 1.5x
- 2x

„Teplé v zimě a chladné v létě, s dobrou kavárnou a, abych nezapomněl, se zajímavými obrazy.“
Kamenice nad Lipou má i svoji lípu
Kamenice nad Lipou je malé město, spíše městečko na půl cesty mezi Pelhřimovem a Táborem. Místně spadá do okresu Pelhřimov. Nachází se ale hlavně na Českomoravské vrchovině na trase historické úzkokolejky tratě Obrataň a Jindřichův Hradec. Je to součást sítě tratí, které propojovaly hlavní vlakové tratě. Nazývala se Českomoravská transverzálka. Je to neskutečně atraktivní spojení lokálního charakteru mezi Čechami a Moravou. Cílem bylo spojit hlavní státní stávající vlakové tratě a spojit místa jako Strakonice, Tábor, Domažlice, Jihlava, Brno, Veselí nad Moravou, ale i Trenčianskou Teplou v Uhrách. Podle toho posledního spojení chápeme, že tyto tratě vznikaly na konci 19. století, tedy za Rakouska-Uherska. Pochopitelně že tento spletenec drobnějších spojení nebyl jenom doménou Českomoravské vrchoviny, ale i dalších míst, která se nenalézala v dosahu nebo přímo na hlavních státních vlakových tepnách. Při tvaru naší země to snad ani jinak nebylo možné. To, co bylo tehdy nezbytností pro život lidí, jejich přepravu i pro přepravu nákladní, se začalo postupně vytrácet a některá tato spojení zanikla zcela nebo jsou provozována místními přepravci a nadšenci starých časů. Tato atraktivita svědčí cestovnímu ruchu a je neskutečným bonusem v letních měsících a v čase dovolených. Co kdysi znamenalo hlavně spojení se světem se nyní stává jedním z typů spojení pro místní, ale zároveň skvělou atrakcí pro návštěvníky.
Pohled uliční, západní. Foto: Radek Úlehla
Historické městečko v kontextu bohaté historie a krásné přírody
Obzvláště pro krásná městečka velikosti Kamenice nad Lipou s historickým jádrem, které je městskou památkovou zónou. Památná lípa, renesanční zámek s anglickým parkem, křížová cesta, nádherně zrekonstruovaný pivovar a bohatá historie jsou jenom kamínkem do mozaiky okolních sídel s bohatou historií. V dosahu Jindřichův Hradec, zámek Červená Lhota, hrad Kámen a spousta dalších míst v nádherné přírodě Českomoravské vrchoviny. Proč ten výčet atrakcí a historie? Protože na historickém Husově náměstí Kamenice nad Lipou vznikl dům s kavárnou, jógovým studiem a bydlením. Chtěl jsem ukázat, do jakého rámce se zrodila totální přestavba, která si vzala za úkol dodržet ráz maloměstského řadového domu a zároveň na maximum využít možnosti, jež skýtá původní dispozice.
Průhled z jógového studia. Foto: Radek Úlehla
Prostě a lapidárně, bez architekta to nedáte
Zase se ocitáme u úkolu pro architekta, což je vlastně jeho denním chlebem. Potýkat se s protivenstvím umístění hmot, velikosti, estetiky barev a materiálů, při zachování rázu památkové zóny náměstí, smysluplné dispozice, co zachovat, co rekonstruovat, co odstranit a zaměnit za nové. Pokud si naše povídání čtete pravidelně, tušíte, že žádný úkol není neřešitelný, a i malý úkol je taky potřebný na vyřešení. To jsem zjednodušeně charakterizoval kousek z práce architekta. Chcete-li lépe, pak snaha architekta zahrnuje komplexní tvorbu a návrhy při výstavbě, rekonstrukci nebo úpravách budov, interiérů, ale i celých územních celků, a to jak z technického, tak uměleckého hlediska. Architekt působí jako klíčový manažér a organizátor, jehož cílem je převést potřeby a vize klienta do funkčního, estetického a legislativně vyhovujícího návrhu.
Jógové studio. Foto: Radek Úlehla
Nesnadné zadání je třeba korunovat úspěchem
Do takového rámce vtěsnalo architektonické studio matěj šebek architekti velmi pestré požadavky nad kavárnu a jógové studio se zázemím, velkorysé bydlení 3+kk nad kavárnou v přízemí, terapeutovnu se zázemím, jednopokojový byt s terasou, vše v patře. Ten úkol dopadl skvěle a že byl nesnadný. Z ulice si dům zachoval záměrně původní vzhled. Práce s režným zdivem, kamennými zdmi, subtilním kovovým schodištěm, dřevěnými obklady a trámy, dřevěné stropy, přesah střechy nad vykonzolovaným částečným ochozem patra, jemné kovové pletivo zábradlí, betony, nerezové vybavení, nekomplikovaná barevnost původních i nových přírodních materiálů a omítek, je v důsledku korunována poklidnou estetikou. Ta je dokladem, že lze vkusně skloubit původní historickou stavbu s novými částmi. Vše skvěle doplňuje průjezd včetně betonové lavice určené hostům kavárny. Přes komplikovanost celé rekonstrukce dům s kavárnou a studiem zůstává harmonickým propojením jeho vnitřních funkcí a pevného místa v historické zástavbě v kontextu opěvované Českomoravské vrchoviny s jejími bonusy.
Základní popis
Kompletní přestavba dala vzniknout městskému domu v Kamenici nad Lipou s kavárnou, jógovým studiem a bydlením.
Architektonickovýtvarné řešení a ideový záměr projektu
Autorská zpráva
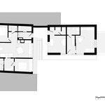
Dům na Husově náměstí je tradiční typologií maloměstského řadového stavení s průjezdem do vlastního hospodářského dvora. Rozmanité zadání si vyžádalo využít dispoziční možnosti původního domu na maximum. Totální přestavba je společným projektem rodiny Zahradníkových – mužská část organizuje realizaci v rámci vlastní stavební firmy, zatímco dámy jsou duší provozu – kavárny a jógového studia.
Právě historická stavba do náměstí slouží jako kavárna. Obnažené zdivo i povalový strop uvnitř přiznávají jizvy po minulých funkcích i úpravách. Do odhalené vnitřní struktury je vložený přesný nerezový objem kavárenského pultu i dalšího nezbytného zázemí jako jsou toalety. Hosté sedí na dlouhé jasanové lavici a modrých židlích. Vzniká tak pestrá povrchová koláž složená z autentických a přirozených materiálů – ať už původních nebo zcela nových. Kavárenské bistro se rozšiřuje průjezdem až na dvůr, kde hostům slouží dlouhá betonová lavice.
Zcela nová je přístavba ve dvoře vložená do stopy původních hospodářských stájí. Její architektura nezastírá soudobost, ale reaguje na principy původních domů. Parter je vyzděný ze starých cihel z bouračky, vysazená pavlač je nesena na dřevěných trámech a doplněna o křehké ocelové schodiště a zábradlí. Za prosklenou stěnou přístavby je v přízemí studio sloužící pro jógu, přednášky nebo semináře.
Centrální místnost bytu v patře. Foto: Radek Úlehla
Zinkované schodiště vystupuje ze dvora na pavlač, která spojuje původní historický dům se současnou přístavbou. Podkroví historického domu je vytvořeno zcela nové. Střecha do náměstí si zachovává svou původní figuru – výšku hřebene i sklon. Do dvora je ovšem vložen velkorysý vikýř, který umožňuje uvnitř rozvinout dispozici bytu 3+kk. Pro jednoho ze synů tak vzniká „byt nad kavárnou“. Z pavlače jsou ještě přístupné 2 další nájemní jednotky. Tou první je místnost terapeutovny se zázemím, druhou jednopokojový byt s malou střešní terasou na zelené střeše.
Rodinné úsilí dalo vzniknout, navzdory velmi komplikované rekonstrukci, živému městskému domu, který pomáhá oživit malé městečko na Vysočině.
Průhled atriem k průjezdu. Foto: Radek Úlehla
Doplňující informace
| Studio | matěj šebek architekti |
| Autor | Ing. arch. Matěj Šebek |
| Umístění projektu | Husovo náměstí 66, Kamenice nad Lipou |
| Země projektu | Česká republika |
| Rok projektu | 2021 |
| Rok dokončení | 2025 |
| Zastavěná plocha | 200 m² |
| Hrubá podlahová plocha | 367 m² |
| Užitná plocha | 262 m² celkem 128 m² kavárna a studio 68 m² byt 3+kk |
| Náklady | 8 mil. CZK |
| Klient | rodina Zahradníkových |
| Fotografie | Radek Úlehla, www.radekulehla.com, hello@radekulehla.com Vladimír Běhoun |
| Spolupracovníci a dodavatelé | Grafické řešení kavárny: Hana Houšková, Vladimír Běhoun Hlavní dodavatel: I. Kamenická stavební Nábytek na míru: Panab Truhlářská okna a dveře: HP27 Zámečnické konstrukce: Radek Liška Nerezové prvky: Neza |
| Materiály | Seznam použitých materiálů
původní režné zdivo – kavárna, přístavba
broušená nerez – kavárenský pult a obklady stěn jasanové dřevo – lavice a stolky v kavárně modřínové latě – obklad fasády kamenné žulové odseky – dláždění dvora |
| Značky | Seznam použitých značek
židle La Zitta – TON
světla Shadows – Brokis pouzdrové bezobložkové dveře – JAP omítka a patinovaný nátěr – KEIM |
| O studiu/autorovi | Bližší informace
matěj šebek architekti jsou malým autorským studiem sídlícím v Praze. Působí ale také v jihočeském Jindřichově Hradci, odkud Matěj pochází. Absolvoval na FA ČVUT v ateliéru Novotný – Koňata – Zmek s úspěšným diplomním projektem Nového divadla pro Jindřichův Hradec. Samostatnou praxi jsem založil „drze“ hned po diplomu jako nejpřirozenější formu architektonického fungování. Náš pracovní kolektiv se postupně rozrůstá a jeho pevnými členy jsou dnes Matěj Bělohlávek a Jakub Ježek. Nechceme jen navrhovat, ale také stavět. Častěji rekonstruujeme než bychom stavěli nové. Zakládáme si na pečlivé práci od konceptů přes technické projekty až po reálný stavební detail. Díky našemu přístupu a odvážným klientům se můžeme pouštět do práce s radostí i zdravým napětím, když zkoušíme nové cesty a možnosti. Snažíme se udržet škálu naší práce co nejpestřejší ve všech možných rovinách. Proto pracujeme na novostavbách i rekonstrukcích; na malých individuálních úkolech i velkých kolektivních projektech, proto kreslíme koncepty i stavební detaily. U větších projektů spolupracujeme na širší platformě jih.architekti, ve které se soustředíme na rozsáhlejší úkoly ve veřejném prostoru a intenzivní mezioborovou spolupráci, např. s krajinářskými architekty. |
Použité podklady:
- Citáty – http://www.citaty.net
- Fotografie – Radek Úlehla, www.radekulehla.com, hello@radekulehla.com, Vladimír Běhoun
- Fotografie, část textů a tisková zpráva – STUDIO MATĚJ ŠEBEK ARCHITEKTI a Vendula Tůmová, LINKA NEWS s.r.o.





























































Sdílet / hodnotit tento článek