
V metrech rozlohy jej můžeme napočítat ve dvou desítkách metrů čtverečních. Ani jeho provedení nepodléhá extrémům, v principu se jedná o standardní rozšíření rodinného domu malou přístavbou. Které bylo dosaženo vcelku nenáročnou stavební cestou, připojením struktury boxu a napojení schodiště. Ovšem výsledek, to už je něco jiného. Kvalita bydlení i celková hodnota nemovitosti tímto zákrokem silně povyskočila, a dům přístavbou získal opravdu mnohé.
Příliš mnoho vchodů
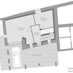
Situaci v místě, kterou klienti, obyvatelé menšího dvouúrovňového rodinného domu řešili, byla následující. Hmota stavby byla rozdělená mezi dvě patra, která kopírovaly terén. Vyvýšeninu, terénní vlnu, obkrouženou asfaltem silnice. Dům byl přístupný ze dvou stran: na svrchní úrovni, kde bylo stání pro auta, a pak v úrovni přízemí, kterým se obydlí navazovalo na chodník, silnici a vesnici. Nic až tak mimořádného. Jen, že dané uspořádání bylo, vzhledem k určité stísněnosti obydlí, krajně nepraktické. Dva vchody, dvě předsíně, dvouúrovňový profil. Prostě nadbytečnost zbytečnosti.
Architekti ze studia Comas-Pont arquitectes byli požádáni o optimalizaci plánu, s ohledem na zachování parkovacího stání, rozšíření domácnosti a „regulace“ počtu vstupů, tedy alespoň oněch předsíní. Schůdné řešení pak nabývalo podoby předsazeného boxu, který svrchní podlaží rozšiřovalo o jednu místnost, zachovávalo prostor parkovacího stání a svádělo přišedšího řidiče „by-passem“ bočního schodiště (vinoucího se podél svahu a připevněného k hlavnímu objemu stavby) až na úroveň přízemí a teď už jednoho jediného hlavního vstupu. Tedy – o jeden vstup a předsíň méně, o celou jednu novou místnost pak více.
Nenáročnost provedení i solidní cena
Specifikem této přístavby (s celkovou výměrou komplet 22,93 metrů čtverečních) je pak materiálové provedení. Rodinný dům s pultovou střechou je vystavěn z hrubého kamene s režnou omítkou, svým výzorem je typický pro katalánský region Girony. Nepatří k nejnovějším, přináleží k duchu míst i vesnice. Technicky nejsnazší variace přístavku, formou dřevostavby, by tu ale působila dost neautenticky. Možnost připojení betonového bloku by „zhrubla“ a vizuálně převážila charakter domu, cihly se nejevily perspektivně svou nákladností. Aby byla přístavba udržena v jednoduchém a kompaktním duchu, rozhodli se architekti zformovat do podoby přiznané přístavby cortenového bloku.
Povětrnostně odolná ocel, přirozeně rezavějící, je sice atypickým prvkem, ale lehkým a základní obrys původní stavby ne-strhávajícím. Pro toto řešení hovořila pořizovací cena, odolnost, nízko-údržbový režim. A také nečekanými faktory, kterými o sobě dal vědět loňský rok. Ano, řeč je pandemii koronaviru, která doma přikovala lidi po celém světě. A zrovna obyvatelé rodinného domku v Ribes de Freser cítili, že z nadbytku předsíní a vstupů jim je v daném uspořádání domácnosti poněkud těsno.
Dům už se karantén obávat nemusí
„Jedničkou na seznamu požadavků byla optimalizace a snížení napojení vstupů,“ dodávají architekti. „Ale už v této fázi jsme po prohlídce v terénu cítili, že by dům mohl získat víc.“ Šlo o to, že ze svrchní úrovně domu se nabízely (překryté jinak hluchým prostorem uzavřené zdi u parkoviště) nevšední viuers, výhledy na okolní pohoří a řeky. „Vlastně odtud můžete sledovat tok Rigardu, Freseru, Segadellu, a stát čelem ke katalánským Pyrenejím. Okna domu, situovaná k silnici přitom slepě hledí k vesnici. Přišlo nám to jako ohromná škoda, protože se tu nabízelo víc.“
Zhruba v této fázi pak udeřila pandemie, s důsledky v podobě karantén, sociálního distancování a omezení pohybu, a nevyhnula se ani Španělsku. Dorovnání prostoru v místě přisazeného schodiště mezi úrovněmi, už nepředstavovalo větší problém. Tento posun v původním plánu dal domu další místnost, a hlavně ony nevšední výhledy. Jaké je ale poslání, účel této místnosti? Obyvatelé se rozhodli, že jej nebudou nějak konkrétně programově definovat. Je to prostě místo pro život, které se podbízí rannímu cvičení jógy nebo odpolednímu rozložení autodráhy.
Hlavně je to prostor navíc, který v domě tolik chyběl. Směrem ven se přitom interiér částečně anonymizuje a kryje lamelami a pažením, takže svým uživatelům nebere soukromí. Boční průřez schodiště pak výhledem do strany podtrhuje kvality rozhledu. Předsazená předsíň na úrovni přízemí pak šetří místo uvnitř domácnosti. Vlastně se tím všechny „zbytečnosti“ – koridor chodby, schodiště, napojení pater a předsíní, přenesly vně, před vlastní práh domu. Dvaadvacet metrů čtverečních není mnoho, ale dopad téhle změny pro kvalitu života obyvatel rodinného domu byl naprosto zásadní.
Údaje o projektu
| Název projektu: | Threshold Stairs House |
| Typ projektu: | přístavba k rodinnému domu |
| Architektonické studio: | Comas-Pont arquitectes |
| Lokalizace: | Ribes de Freser, Katalánsko, Španělsko |
| Vedoucí projektu: | Jordi Comas, Anna Pont |
| Dodavatel stavby: | Metàl.liques Olot |
| Strukturální inženýring: | Manuel Arguijo |
| Dodavatelé materiálu: | Allplan |
| Tesařské práce: | Sergi Martínez |
| Technický inženýring, konzultace: | Miquel Grifell |
| Klient: | Marta Perramon, Eudald Puig |
| Rok dokončení (finalizace): | 2020 |
| Počet podlaží: | 1+1 |
| Užitná plocha: | 22 m2 |

































Sdílet / hodnotit tento článek