
V případě produkce společnosti Kodasema se nedá úplně hovořit o architektuře, spíše o užitém a vhodně roznásobeném designu. Architekt nepochybně stál za prvními návrhy, než se celého díla chopily stroje, ale pak se celý záměr změnil na sériovou výrobu. Což ale neznamená, že by to nestálo za zmínku. V Estonsku se totiž možná rodí nová generace obydlí, nový globální trend. Mísí se v ní požadavky po individualitě bydlení, ideje environmentalismu, a další variace na téma soběstačnosti a udržitelnosti. Přitom se divák, vyrůstající v kterémkoliv krajském městě bývalého Československa nemůže zbavit dojmu, že tu vidí nástup „nové generace paneláků“. Což je zkušenost, která je do značné míry nepřenosná a současně varující. Co je to tedy projekt KODA?
Menší obydlí znamená lepší vztah k přírodě
V zásadě koncept na prostor a energie velmi nenáročného bydlení, nový model výstavby měst. Které si nemusí dělat starosti se základy, a v případě KODA ligh float ani se zvyšující se hladinou oceánů. Ale postupně: není to zase tak dlouho, co badatelé studující konzumní myšlení, udržitelnosti, vztah člověka a životního prostředí či zákonitosti spotřební logiky přišli s „objevem“. Prokázali, že ekologická stopa jednotlivce dramaticky narůstá s tím, jak velkou plochu vlastně obývá. Stranou nechme, že podobný výsledek zavání kauzalitou: když už má váš apartmán 400 metrů čtverečních, dá se rovněž předpokládat, že máte v garáží i dvě tři auta, a na dovolenou často létáte letadlem. Vaše eko-stopa je proti průměru masivní jednoduše proto, že máte dost peněz. Což se u obyvatel domů a bytů, jejichž výměra připomíná garsonku, většinou neděje.
Foto: Riku Kylä, Tõnu Tunnel, Getter Kuusmaa, Daniel Mets
Hnutí za návrat malých domů
Tenhle trochu zvláštní poznatek jen podtrhlo současné hnutí „malých domů“. Miniaturních obydlí, obytných maringotek, mikro-bytů a chatiček. Ekologická/uhlíková stopa jejich obyvatel je menší. Mají menší konzumní nároky, nenakupují zbytečnosti, protože je nemají kam dát. Jsou prý spokojenější s málem. A s tím ruku v ruce nastoupil přístup, že „menší je pro zdravou budoucnost lepší“. Estonci v Kodasema evidentně dávali při podobných debatách pozor, a rozhodli se do tohoto rozjetého vlaku nastoupit. Teď se vezou první třídou. Jejich první produkty měly podobu třicetitunového (29,8 t) obytného kvádru, s výškou stropu 2,7 metru a užitnou plochou o výměře 30 metrů čtverečních. Základem byl beton a dřevo, ale chytrému designu interiéru se meze nekladly.
Kancelář, byt, dům i celá vesnice
Kodasema původně představila tyto masivnější unimobuňky jako svou vizi nenáročného bydlení na souši. Vychytaný profil stavby, se kterým se dalo různě pracovat a uzpůsobovat jej na míru přáním klientů, mohl být zrovna tak staromládeneckým bytem nebo rodinným domem, kanceláří, závodní jídelnou, ateliérem nebo obchodem. Prostě univerzální kvádr pro každou situaci. V rámci dlouhodobé reklamní kampaně dokázala estonská Kodasema vytvořit stylově laděné vesničky s desítkou takových bloků. Obchod, úřad, domy. A k tomu spousta zeleně. Bylo to chytlavé, zvlášť pokud vám nevadí totální uniformita zástavby. Ve hře bylo pár podstatných pozitivních faktorů. Třeba relativně nízká bilance stavby: na parcelu se nevozí materiál a neprobíhá stavba jako taková, jde prostě o zavezení hotového díla z dílny na místo. A když se nepřepravuje materiál, je to prý lepší.
Foto: Riku Kylä, Tõnu Tunnel, Getter Kuusmaa, Daniel Mets
Odpoutat se od břehu konvencí
Buňky KODA si také nežádají zásadní úpravy povrchu, jsou usazeny nad terénem, na nosných pilířích nebo pylonech. Takže teoreticky nezabírají místo přírodě. Navíc je celá tahle záležitost velmi pohotová, a kromě pořizovacího poplatku, pronájmu místa a přepravy obytného kvádru nic navíc neplatíte. A jak už to tak s podobnými autonomními boxy bývá, jsou dodávány v provedení, které může být do různé míry soběstačné a nezávislé na okolních zdrojích. Tedy přímá podpora OZE, vodosběrných systémů, baterií, recyklace a rekuperace. Prostě úplná selanka.
Přesto se zdálo, že koncept bydlení KODA mimo pár archi-festivalů Estonsko a sever Evropy neopustí, a nestane se komerčně významnějším trendem, než desítky jiných velmi podobných „úsporných“ projektů. Jenže Kodasema učinila ve formě KODA light float učinila další krok. Do vody.
Foto: Riku Kylä, Tõnu Tunnel, Getter Kuusmaa, Daniel Mets
Katastrofická i pohodová linie
„S tím, co víme o vývoji klimatu, je nárůst hladiny moří v následujících dekádách nevyhnutelný,“ začínají své tažení v Kodasema. „Je to proces, který ovlivní města na pobřeží a zasáhne celé národy.“ Což je v zásadě pravda: většina lidské populace žije ve velkých městech, a velká města se dost často nachází na pobřeží. „My nabízíme model odpovědného a rozumného bydlení, které se stane ideální alternativou pro ty, kteří by chtěli bydlet ve městě na pobřeží.“ Že to zní jen jako slogan? Jenže právě tohle zvolání oslovilo desítky milionů potenciálních klientů po celém světě. Což se jiným modulárním stavbám zatím nepovedlo. KODA light float už není obyčejným domem (ve smyslu: tuctovým malým eko-domem), ale hausbótem. Odlehčenou verzí původního konceptu, nyní usazenou na pontonu.
Odlehčená, plovoucí, dokonalá
Méně betonu a více dřeva, více pokročilého designu, to vše při zachované variabilitě provedení. Je to dům a plavidlo současně. Kodasema navíc dokázala vybalancovat tragicky-panický scénář s linkou pohodového a nezávislého bydlení pro mladé. Plovoucí dům je ideální pohodové bydlení, které vám umožní usadit se na dohled vašemu oblíbenému jacht klubu, přístavu, soukromému jezeru, městskému říčnímu kanálu nebo plážovému distriktu. Je to moderní a sexy, je to bydlení, které chcete! „Je to kus architektury, designu a inženýrských dovedností zkombinovaných dohromady,“ píší tvůrci projektu. A za propracovaný marketing je můžeme jen pochválit: cílí na majoritu světové populace, na mladé toužící po výlučnosti. Což je dokonalé.
Foto: Riku Kylä, Tõnu Tunnel, Getter Kuusmaa, Daniel Mets
Mimochodem, kupní síla mládeže v západním světě jde poslední dobou dost dolů. Věční studenti a mileniálové se tím od předchozích generací dost odlišují, mají mnohem menší tendence k hnízdění a chybí jim také vůle odhodlat se k upsání se na dvacet a více let hypotéky. Pro ně je KODA splněný sen. Je to relativně levné, dá se to snadno přestěhovat na jiné místo (u vody), takže se mohou přesunout za prací bez ztráty domova. A když přijde na náklady: poplatek za nemovitost, která stojí na vodě, nepřesahují poplatek za ukotvení lodě. Je to, ve srovnání se zdaněním tradičních nemovitostí, skoro zadarmo. A jak to celé vypadá?
Do zálivu i na přístaviště
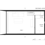
Převážně dřevem vylehčená konstrukce obytného boxu, zasazená do kovového rámu s dvojitou izolací, váží jen 8,9 tun. Je to hra dřeva, skla, minerální pěny, oceli, překližky. Minimalistická, elegantní. Finální úpravy fasády záleží na katalogové nabídce, od dřeva, industriálního betonového obkladu po zinkované desky. Užitná plocha interiéru čítá 25,8 metrů čtverečních, dohromady ale 30 se započítaným mezonetem. Anebo 36, pokud vezmete v potaz i rovnou střechu, přístupnou po žebříku, nebo rovnou dvaapadesát, pokud započítáte i využitelnou nezastřešenou plochu ohrazeného pontonu. To už je slušný 1+kk.
Foto: Riku Kylä, Tõnu Tunnel, Getter Kuusmaa, Daniel Mets
Kotvit se dá i v mrazivých vodách
Čistě provozně KODA light float při kotvení ustojí 30 cm vlny, proud 1m/s, statický led (ale nikoliv plavbu na ledu). Zatížení střechy sněhem může být až 400 kg na metr čtvereční. Termální pohoda není limitována prostředím: 20 cm minerální izolace ve stěnách a 25 ve stropu to řeší, stejně jako trojvrstvá temperovaná okna. V cenovém základu je vytápění podlahy, elektrický bojler, přípojka na kanalizaci a elektřinu. Tvůrci ale ponechávají na klientech podstatnou část rozhodnutí o tom, co konkrétně by od svého plovoucího obydlí očekávali. Je libo solární panely nebo hydroponickou farmu?
Sázka na masovost i individualitu
Výška šla tentokrát na 3,3 metrů, čímž se členěný interiér výrazně nafoukl. A své dělá i prosklená čelní stěna, která obydlí zajišťuje dostatek přirozeného světla. To se týká všech modelů, od obytných po studiové a komerční verze.V případě „plovoucího domu“ světlo do zadní části je vedeno proskleným lemem, které koresponduje se koupelnou. Na úrovni přízemí vstupujete do obývacího pokoje, na který plynule navazuje kuchyně a úložný prostor. Po levé straně pak následuje koupelna (se sprchou) a s toaletou. Schodiště pak nese další integrovaný úložný prostor. Vystoupat po něm můžeme do zvýšené mezonetové části s ložnicí, která je vizuálně oddělena hranolem nad kuchyní. Dvě postele pro obyvatele určitě stačí.
Foto: Riku Kylä, Tõnu Tunnel, Getter Kuusmaa, Daniel Mets
Klient si může zvolit různé provedení, podle míry požadovaného komfortu. Tak, aby bydlení dostatečně odráželo jeho identitu. „Asi nejčastější verzí je prý středomořská villa,“ zaznívá ze studia Kodasema. Je populární v Itálii, Španělsku a poslední dobou i na Maltě. A s velkým napětím se očekává, jak bude KODA přijata ve Spojených státech, které by z definice měly být budoucím hlavním odbytištěm. KODA light float je skutečně zvláštní projekt. Není tolik o architektuře nebo technice stavby, ale spíše o marketingu. Zatraceně chytlavém a propracovaném. A díky tomu má slušně našlápnuto k tomu, aby se skutečně stal bydlením budoucnosti. Je to směr, který se vyplatí sledovat.
Údaje o projektu
| Název projektu: | KODA light float |
| Typ projektu: | modulární obydlí, plovoucí |
| Architektonické studio: | Kodasema |
| Lokalizace: | Tallin, Harjumaa, Estonsko |
| Vedoucí projektu: | Hannes Tamjärv |
| Architektonický tým: | Ülar Mark, Aivars Alt |
| Spolupráce: | Birgit Linnamäe |
| Zahájení projektu: | 2016 |
| Rok dokončení (finalizace): | 2017 |
| Využitelná plocha: | cca 30 m2 |










































































Sdílet / hodnotit tento článek