
Paříž je příběhů plná, a 14. arrondissement není v tomto ohledu žádnou výjimkou. Když v malém průchodu na de la Tour de Vanves zakládal malíř a natěrač Pierre Lemaire svou dílnu, jistě netušil, že zde jednou bude stát velmi přitažlivé bydlení. Proč také: sám měl co dělat, aby z padesáti metrů čtverečních garáže v roce 1950 vyzískal co nejvíce užitečného prostoru pro svou práci. V sedmdesátých letech po něm prostor přebírá jeho syn, Claude. Absolvent pařížské École spéciale d’architecture si tu v malém mezonetu zbudoval skromnou pracovnu, a také malou kuchyňku a toaletu. Muselo to být vskutku tvůrčí prostředí, které ale k dlouhému obývání skutečně nevybízelo.
Přání nejsou omezena prostorem
V roce 2014 pak do příběhu bývalé garáže/dílny/ateliéru vstupuje Christina Lemaire, žijící v Chambéry. Projevila přání přebudovat celý prostor na byt, který by mohl být pronajímán. A s tímto zdánlivě prostým požadavkem oslovila architekty ze studia Wilda Workshop. Proč jen zdánlivě? Limitující faktor omezené užitné plochy k obývání byl ve skutečnosti pořádnou překážkou. „Klientka si přála, aby na daném prostoru vznikl jeden obývací pokoj propojený s kuchyní, jedna skutečná (tedy oddělená) hlavní ložnice, a něco formátu pokoje pro hosty,“ vyjmenovávají požadavky architekti. „A samozřejmě, chtěla také „skutečnou“, tedy prostorově oddělenou koupelnu.“
„Teoreticky něco takového možné je, ale snadné to rozhodně není,“ dodávají. Výhodou do startu byl stěnami nedělený otevřený prostor, který se podbízel tvůrčí činnosti. Klientka ani architekti neměli zájem na tom proměňovat původní profil, nebo nějak degradovat kvality plynule rozvolněného místa. „Do hry ovšem ve fázi plánování vstoupily přísné městské vyhlášky, které nám prakticky znemožňovaly provádět jakékoliv změny objemu budovy. Museli jsme tedy specifikovat a rozčlenit stávající prostor tak, aby vyhovoval zadání.“ A bonus?
Pustit světlo do tmavé dílny? Střecha musí pryč
Klientka si přála, aby byl rekonstruovaný byt maximálně světlý, a jeho fluidní klima si tak mohli případní obyvatelé dostatečně vychutnat. „Což bylo slušně řečeno komplikované. Stavba sama je jednostranně orientována na východ, ale hned dva metry od ní stojí další objekt. Který ji z 80 % kryje,“ doplňují architekti. Naplnění cílů za daných podmínek tedy představovalo nemalou výzvu, žádající si pořádnou míru neotřelých nápadů a invence. Wilda Workshop Architects ale rozhodně nezklamali. Dokázali, že i z minima lze vykřesat velký potenciál.
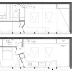
Aby se to „co objem ztrácí při zemi“ kompenzovalo, otevřeli při rozsáhlé rekonstrukci architekti prakticky celý strop, a průhledy sem vpustili maximum světla. Rozšířená výklopná střešní okna navíc zlepšila ventilaci objektu, a světlo dovnitř vpouští i nově zřízené okno ve východní stěně. Vnímání celého prostoru bylo zachováno v nepřerušené ploše, jen po stranách se z ní vydělily části pro hygienické zázemí (a v mezonetové části pak pracovny).
Souboj o centimetry rozhodl víceúčelový nábytek
Vzhledem k opravdu skromným rozměrům objektu působí devět metrů čtverečních obývacího pokoje skutečně štědře. Ale významně k tomu přispívá (stejně jako v celém bytě) na míru stavěný nábytek. Prakticky každý kus je zakázkový, a je všestranně využitelný jako skladovací/odkládací prostor. Nábytek také kryje zahloubené rozvody energií, vytápění a vody ve stěnách. „Skryty musely být všechny, abychom v tak úzkém prostoru zabránili dalšímu ortogonálnímu členění,“ říkají architekti. „Dům tak působí velmi souvislým a přirozeným dojmem.“
Pracovna, ze které přehlédnete celý dům
Zvláštním rysem práce architektů z Wilda Workshop se v objektu Atelier_142 stala „skládací“ pracovna, oddělená prosklenými dveřmi od ložnice pod vybraným stropem v mezonetové části. Je praktickou součástí bočního okna, a současně je odtud výhled na celou obytnou část. Asi nejvíce místa zabírá ke stěně přisedající kuchyň, vedená v účelném, ale přesto velmi moderním stylu.
Klíčovým termínem je tu multifunkčnost a vzájemná zastupitelnost: lavice slouží k sezení, ale prostor pod ní je současně úložným prostorem. Podobné je to i s dělenými schody. Ložnice, která počítá s dvěma nocležníky, se může podle potřeby rozšířit o objem pracovny. A šatna na stejném principu splývá s předělem mezi obývacím pokojem a ložnicí. Ve srovnání s tímto náročným bojem o každé volné místečko pak působí tmavou břidlicí obložená koupelna se sprchovým koutem nebývale prostorně.
Zdá se to téměř neuvěřitelné, ale Willy Durieu (šéfarchitekt Wilda Workshop a vedoucí projektu) dokázal „ubrat“ pět metrů čtverečních z existující skromné padesátky, a přitom vytvořil prostornější verzi bydlení, než jakou nabízela původní dílna. Obyvatelé přitom nemají pocit nějaké stísněnosti, díky optimálnímu prosvětlení. A to není na úkor soukromí, protože boční okna víceméně ústí do zdi protilehlého stavení. Celá realizace projektu Atelier_142 je působivou ukázkou toho, co lze dokázat i s minimálními prostorovými dispozicemi.
Údaje o projektu
| Název projektu: | Atelier_142 |
| Typ projektu: | rekonstrukce nebytových prostor do podoby obytné |
| Architektonické studio: | Atelier Wilda (Wilda Workshop Architects) |
| Lokalizace: | de la Tour de Vanves, 14. ard., Paříž |
| Vedoucí projektu: | Willy Durieu |
| Dodavatel stavby: | ProARt |
| Dodavatelé materiálu: | Grohe, Novoceream, SaintGobain, Otelo Bamboo, Panaget |
| Klient: | soukromá osoba / Christine Lemaire/Lesoin |
| Rok dokončení (finalizace): | 2017 |
| Zastavěná plocha: | 50 m2 |
| Počet podlaží: | 1+1 (mezonet) |
| Využitelná plocha podlaží: | 45 m2 |

















































Sdílet / hodnotit tento článek