Úplně obyčejná dřevostavba. Nebo ne?
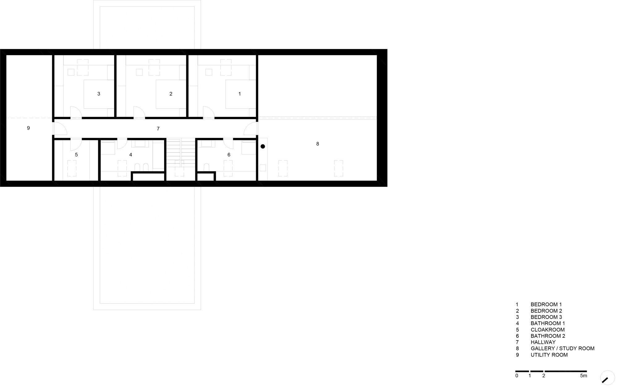
Půdorys první podlaží
Sdílet na Facebooku Sdílet na Pinterestu
39 / 41
REKLAMA