Rekonstrukce bytu z první republiky: Nové potrubí pro kanalizaci a vodovod
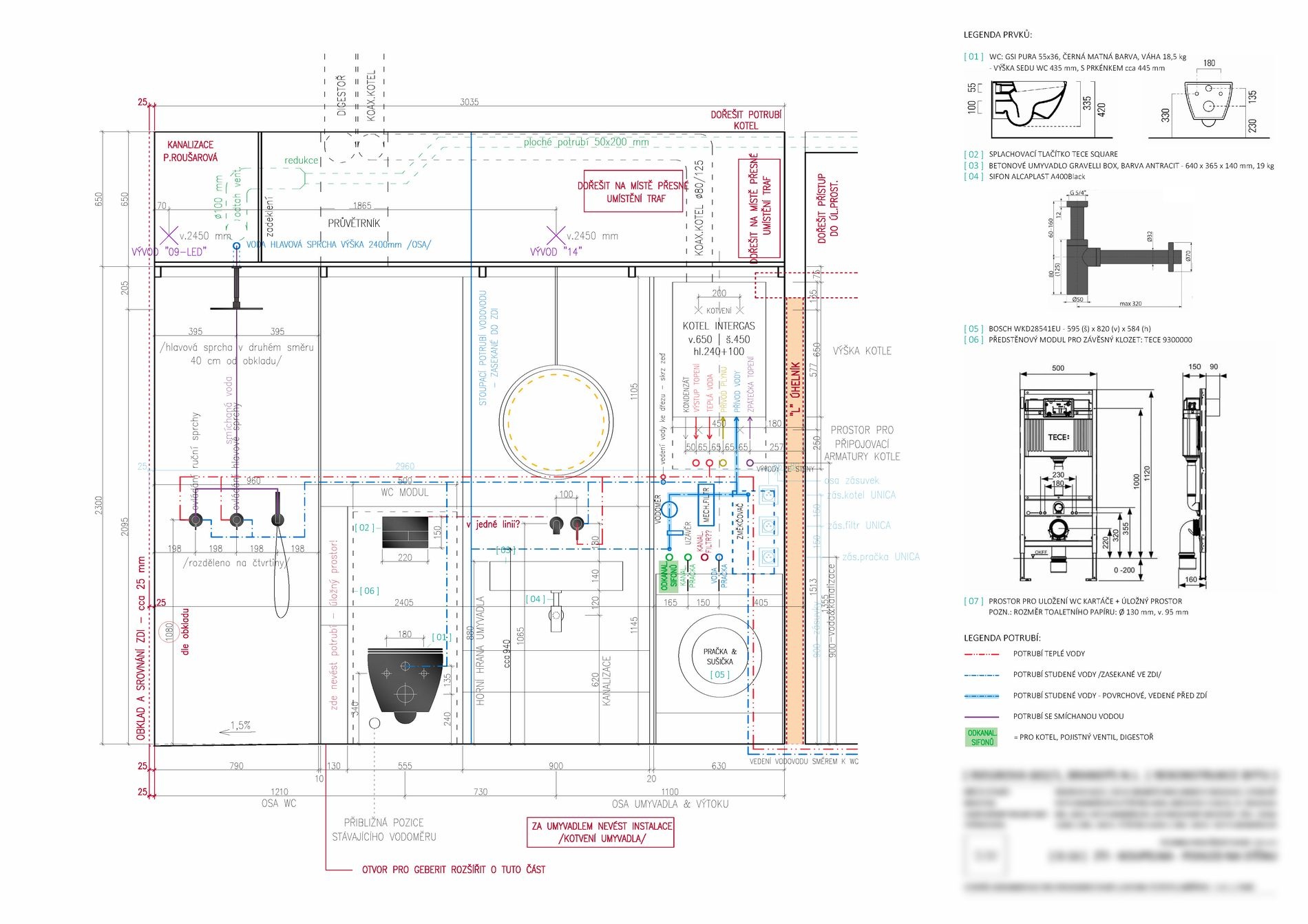
Pohled na hlavní stěnu koupelny - návrh
Sdílet na Facebooku Sdílet na Pinterestu
17 / 17
REKLAMA