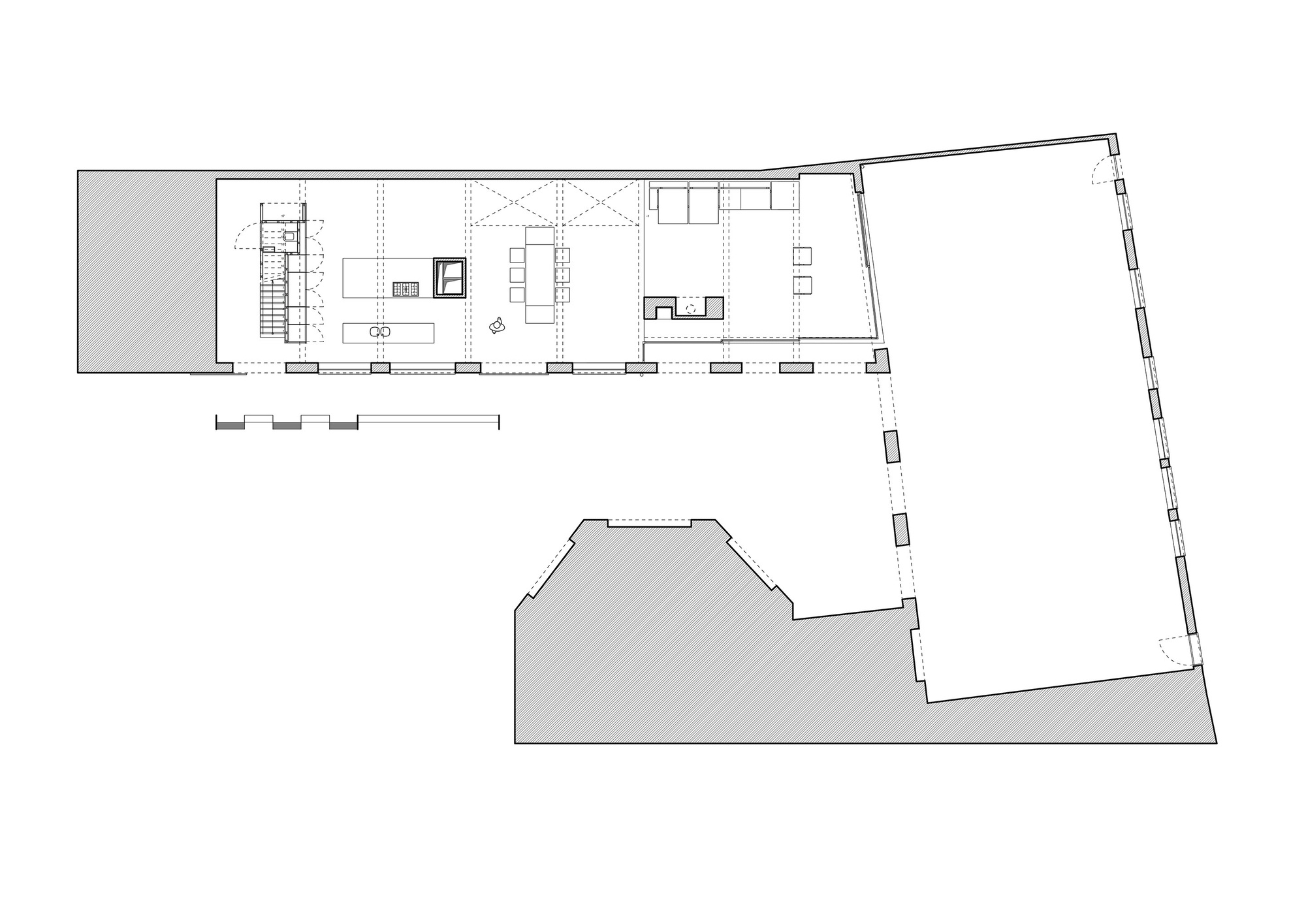
Tři domy, jedna zahrada – z průmyslové budovy vzniklo originální bydlení
Sdílet na Facebooku Sdílet na Pinterestu
37 / 40
REKLAMA