Přádelna Kežmarok jako příklad zajímavé revitalizace a konverze
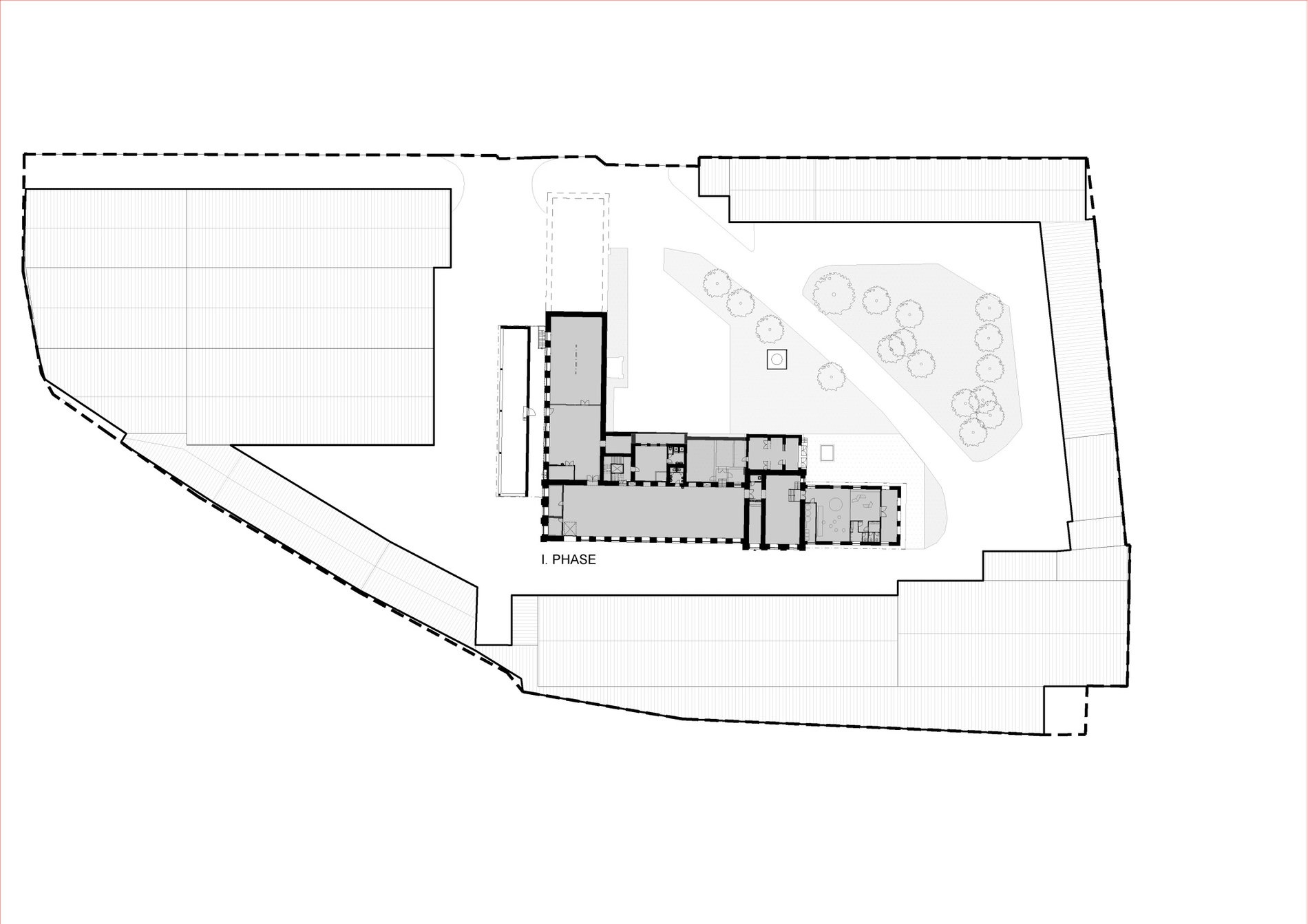
Půdorys 1.NP. Zdroj: STUDIO BEEF ARCHITEKTI
Sdílet na Facebooku Sdílet na Pinterestu
37 / 39
REKLAMA