Přádelna Kežmarok jako příklad zajímavé revitalizace a konverze
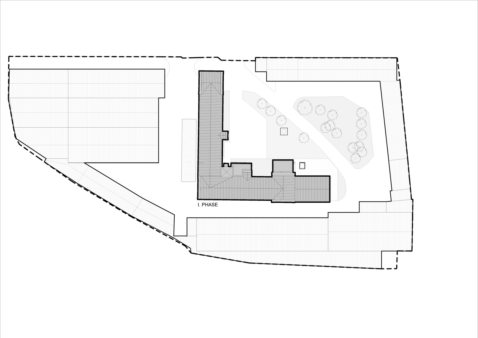
Situace. Zdroj: STUDIO BEEF ARCHITEKTI
Sdílet na Facebooku Sdílet na Pinterestu
36 / 39
REKLAMA