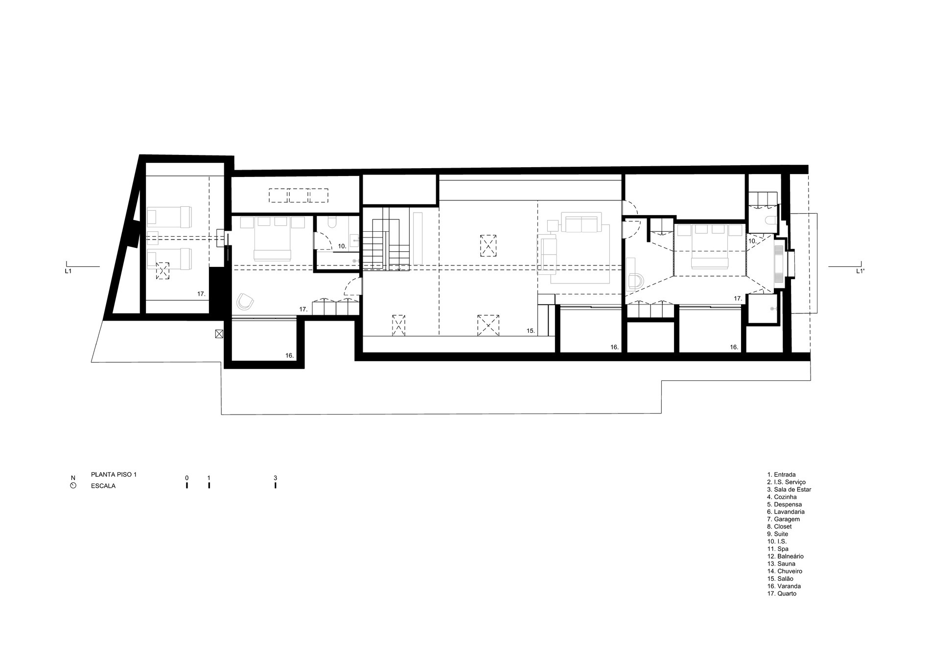
Starý dům minulost nechal za sebou. Stal se novým objektem
Portugalský Mill House minulost nechává za sebou, stává se novým objektem na místě starého. Zdroj: Silverline
Sdílet na Facebooku Sdílet na Pinterestu
93 / 93
REKLAMA