Funkcionalistický byt s původními prvky a růžovým prasátkem
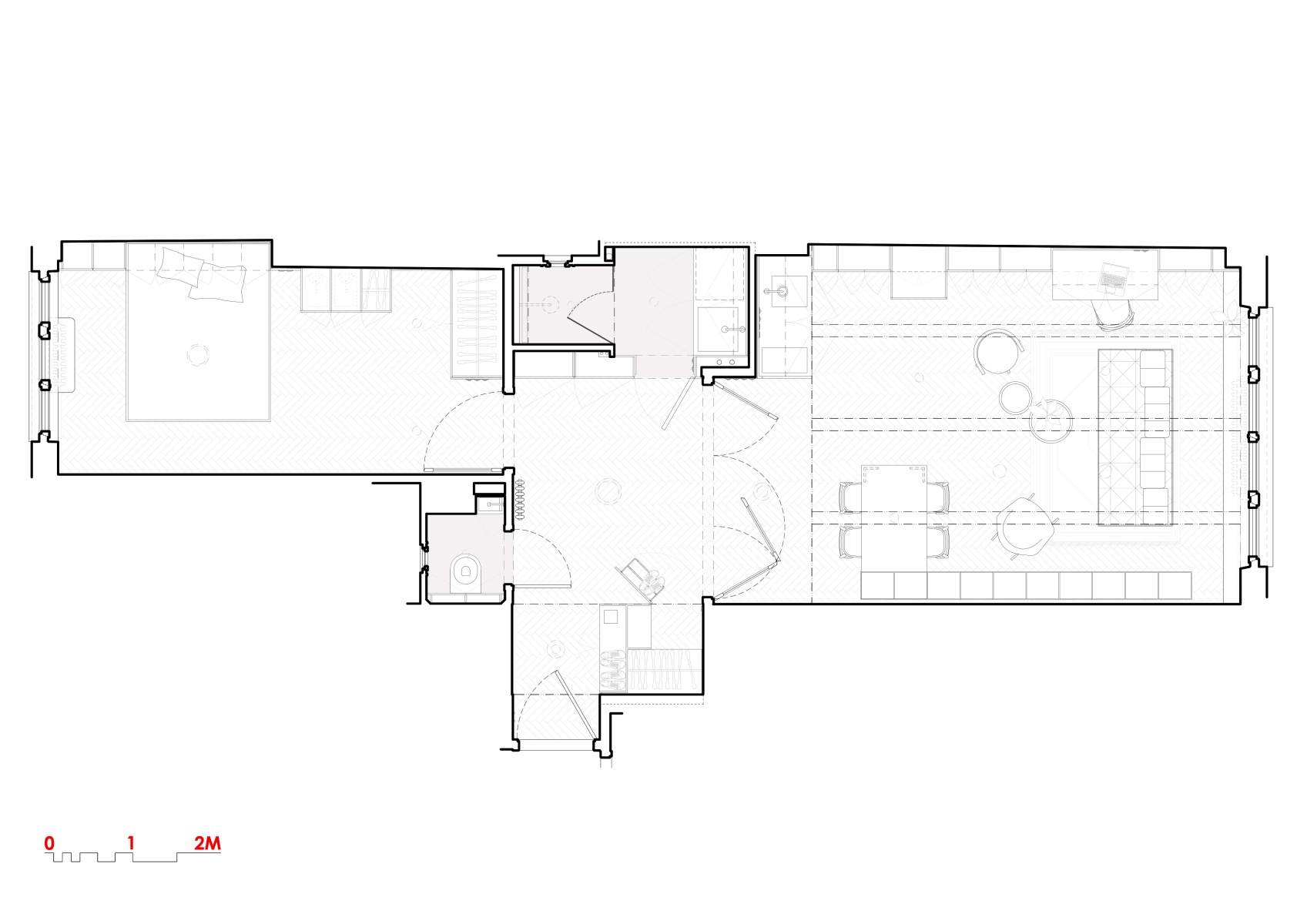
Půdorys nového stavu. Zdroj: STUDIO MARTIN CENEK ARCHITECTURE
Sdílet na Facebooku Sdílet na Pinterestu
33 / 33
REKLAMA