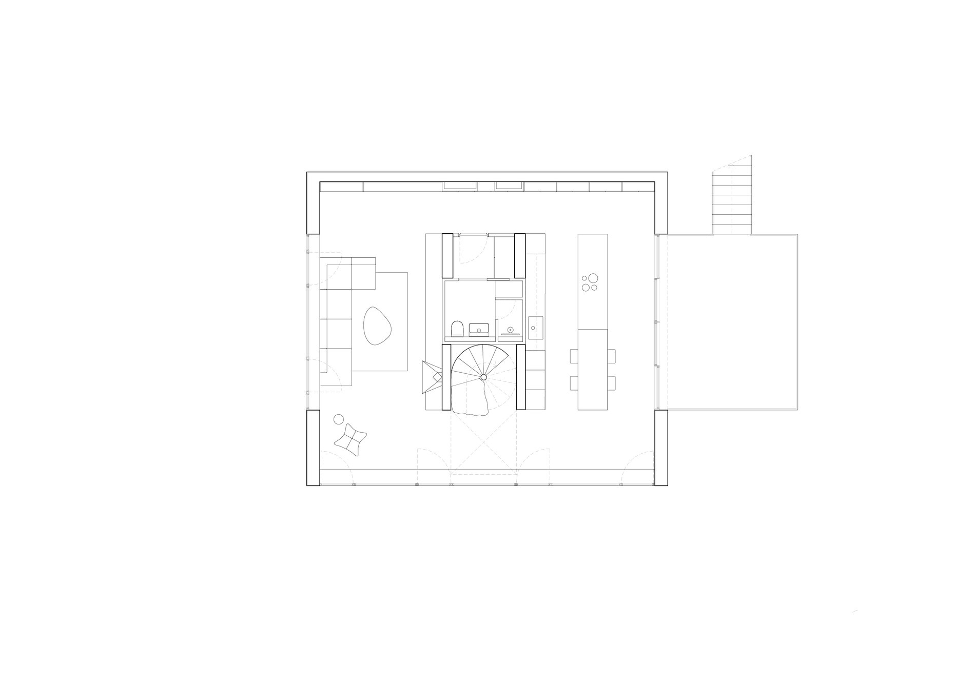
Dům, který se sotva dotýká země: Casa Maragola vás ohromí lehkostí
Dům, který se sotva dotýká země: Casa Maragola vás ohromí lehkostí. Zdroj: Raúl Sánchez
Sdílet na Facebooku Sdílet na Pinterestu
73 / 79
REKLAMA