Tajný vchod do knihovny, kuchyně připomínající jeskyni. Umělci stvořili byt k obrazu svému
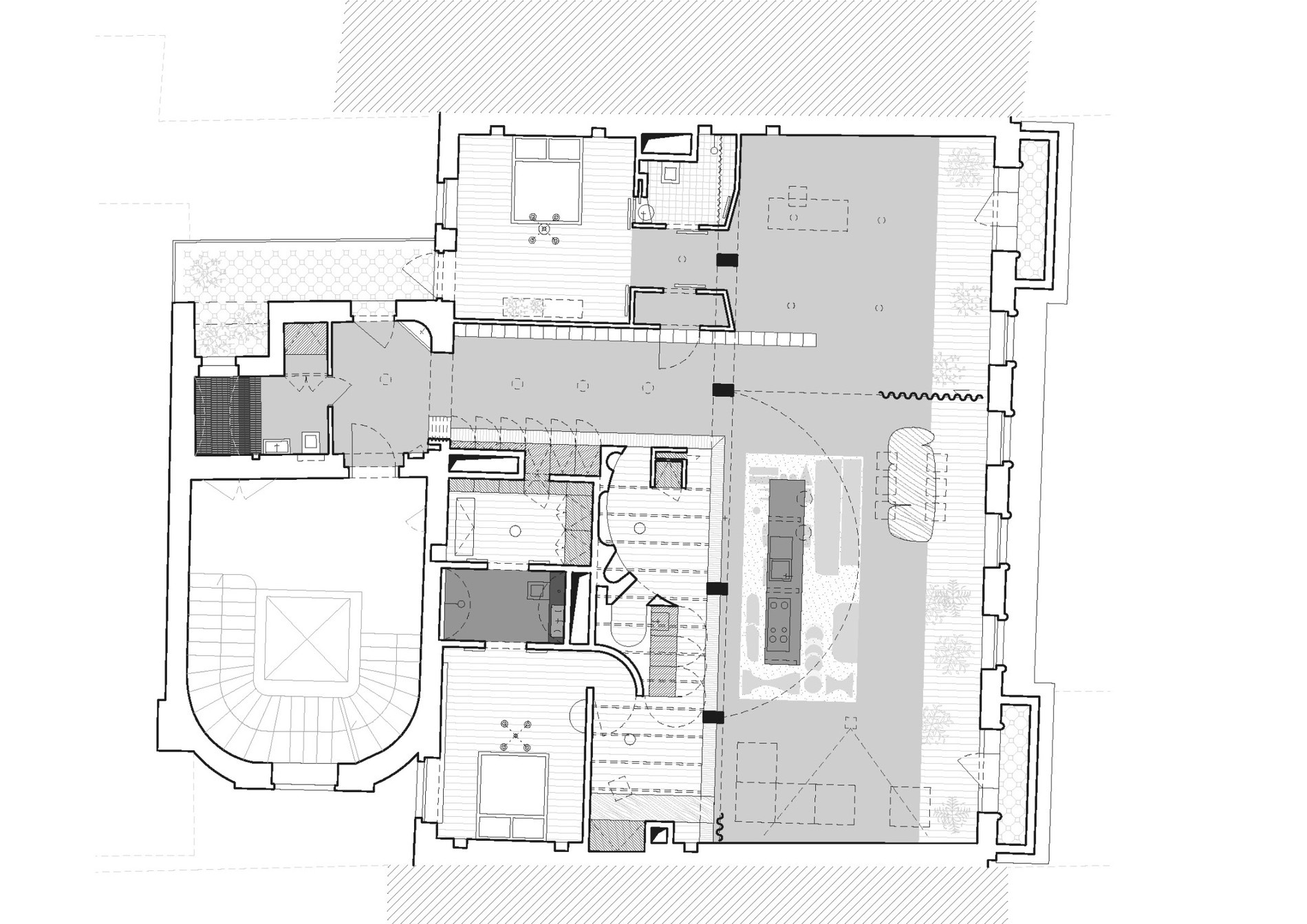
Půdorys celého prostoru bytu. Zdroj: Studio Objektor architekti s.r.o.
Sdílet na Facebooku Sdílet na Pinterestu
35 / 35
REKLAMA