Vyřešte při rekonstrukci jednou provždy problémy s vlhkostí a plísněmi
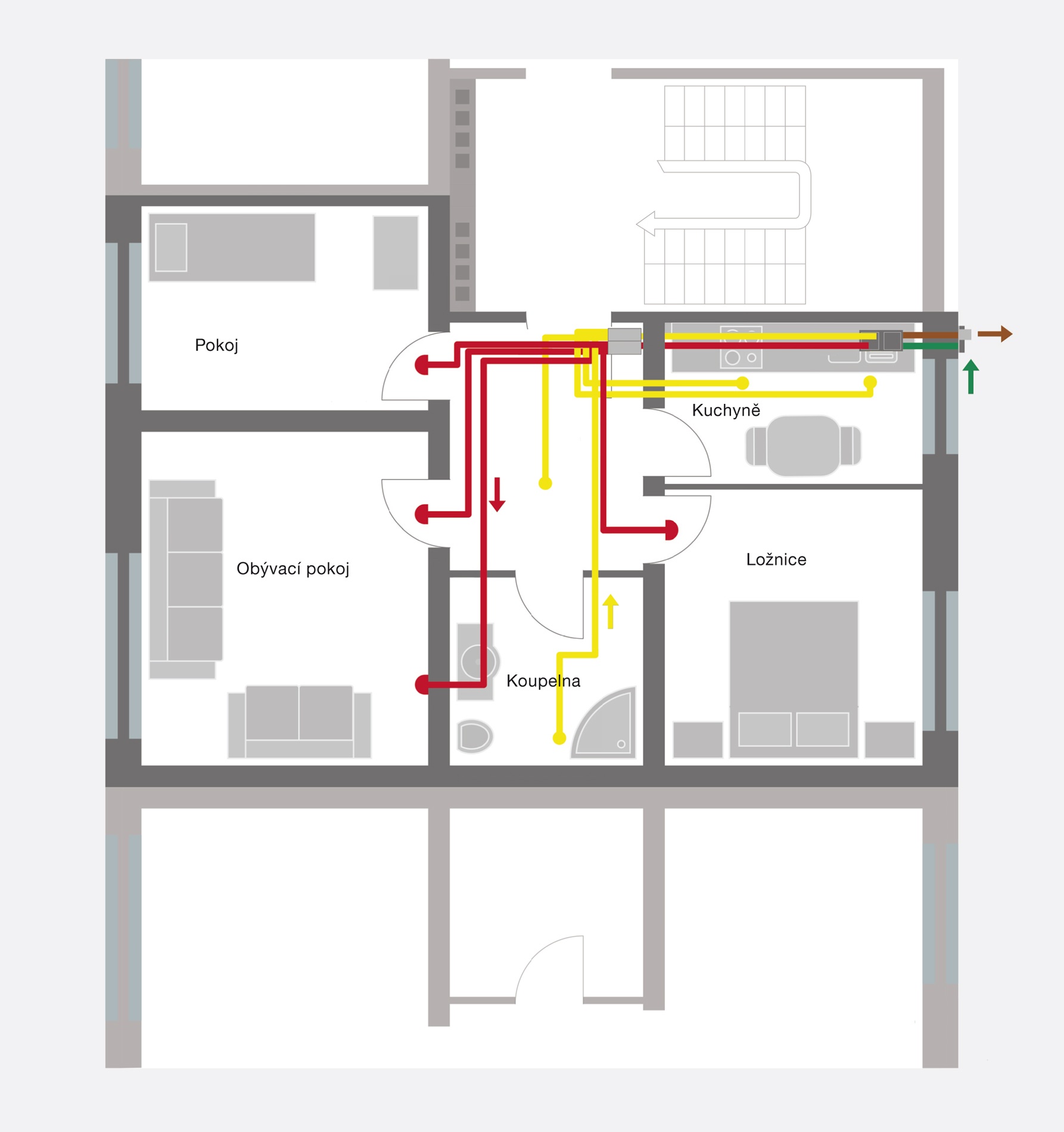
Půdorys s vedením rozvodů vzduchu
Sdílet na Facebooku Sdílet na Pinterestu
2 / 7
REKLAMA