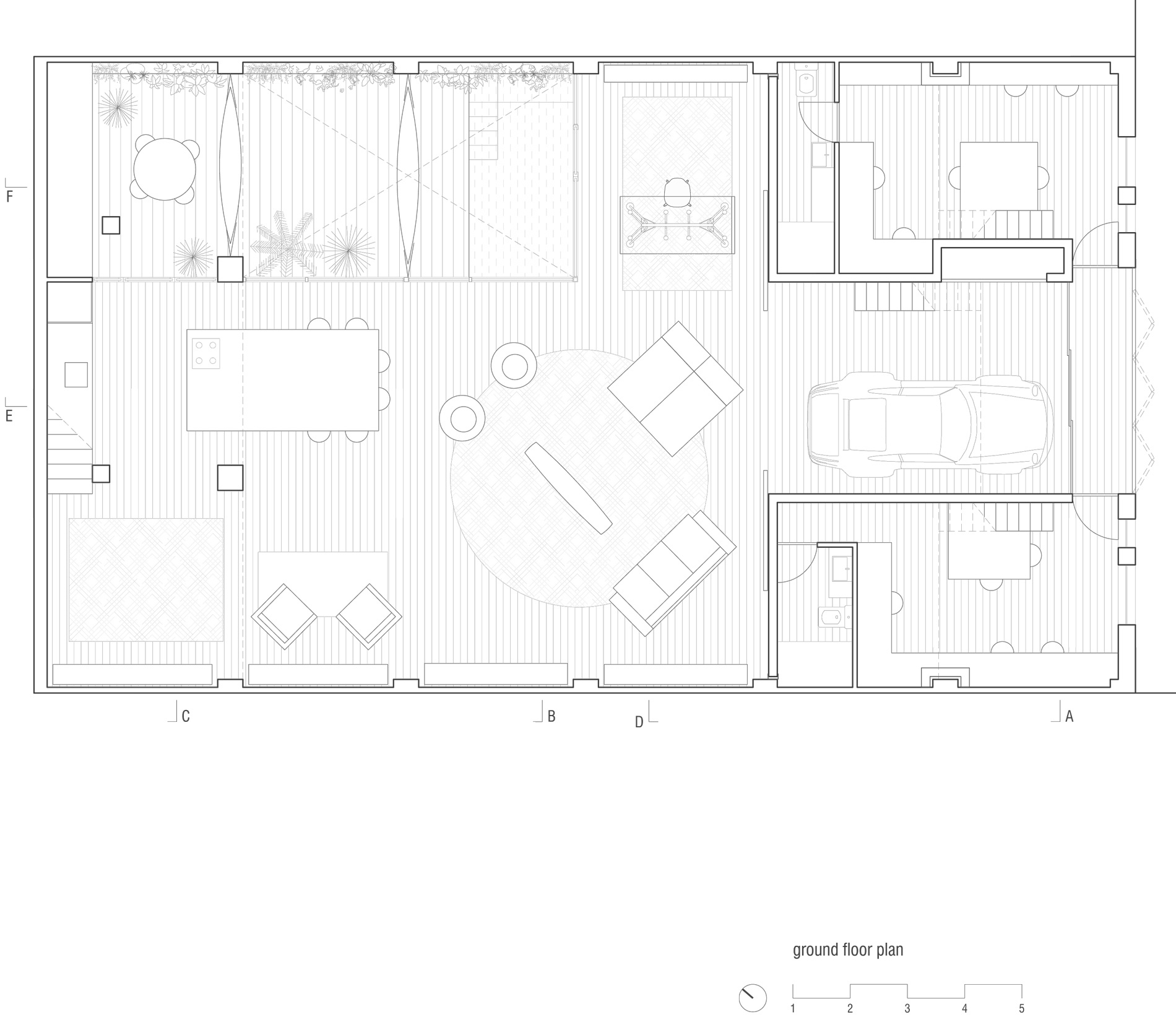
Luxusní bydlení vytvořili ze starého divadelního sálu. Tvůrčí atmosféru zachovali
Sdílet na Facebooku Sdílet na Pinterestu
24 / 36
REKLAMA