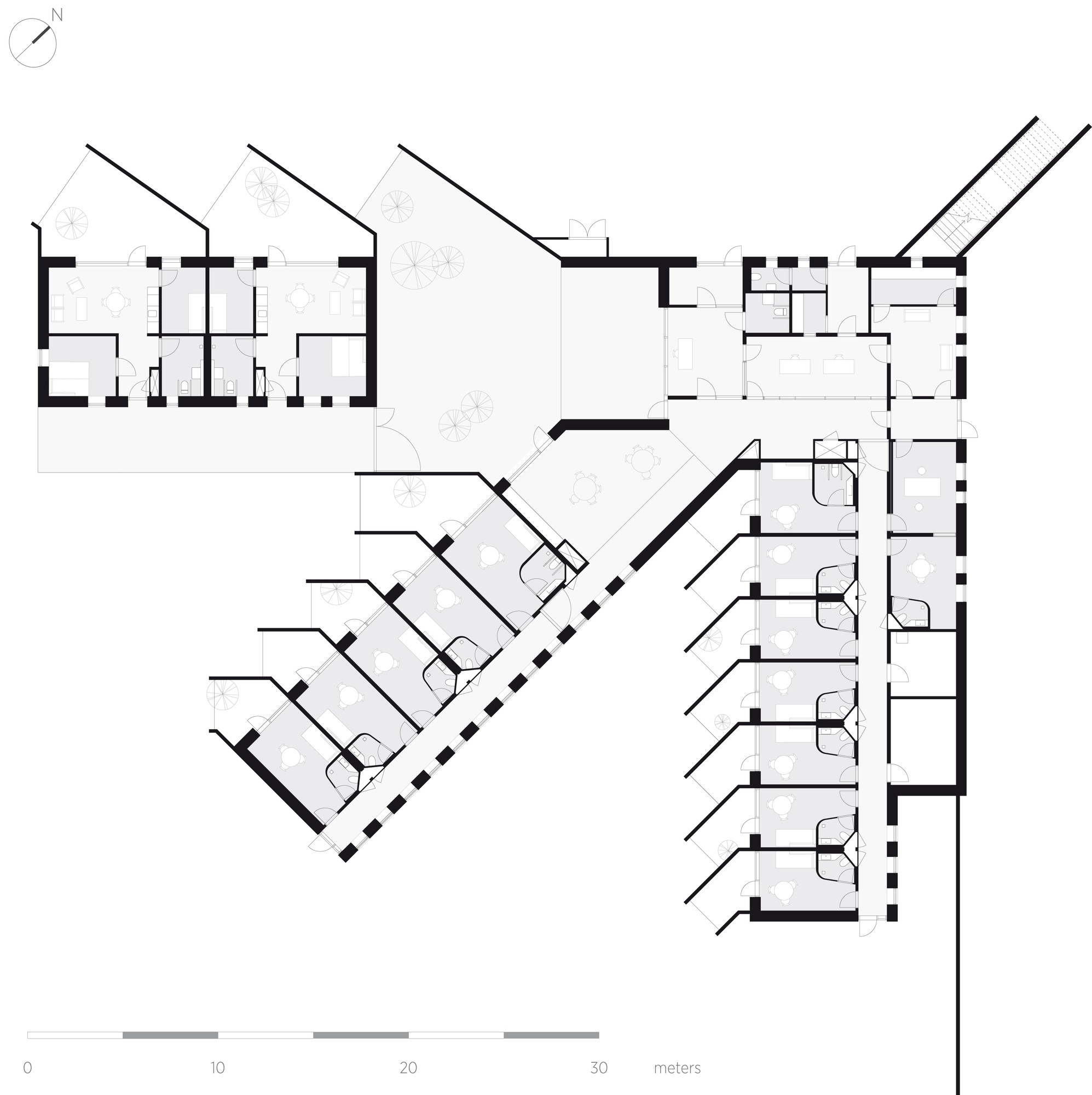
Věznice nebo hotel? Architekti navrhli vězení, které nemá trestat ale napravovat
Sdílet na Facebooku Sdílet na Pinterestu
43 / 45
REKLAMA