Dřevěná chata mezi skálou a řekou
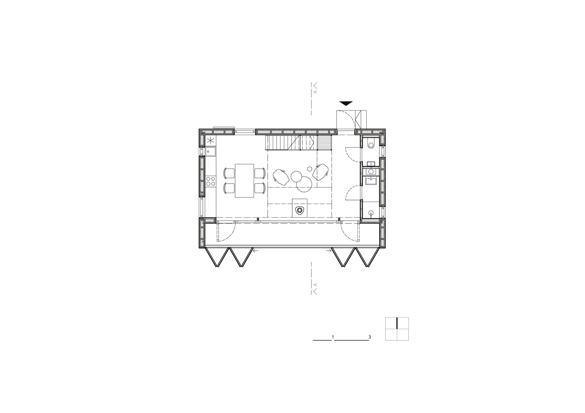
Půdorys 1.NP. Zdroj: STUDIO MIMOSA ARCHITEKTI
Sdílet na Facebooku Sdílet na Pinterestu
31 / 37
REKLAMA