Oživená krása horského domu pod Tatrami
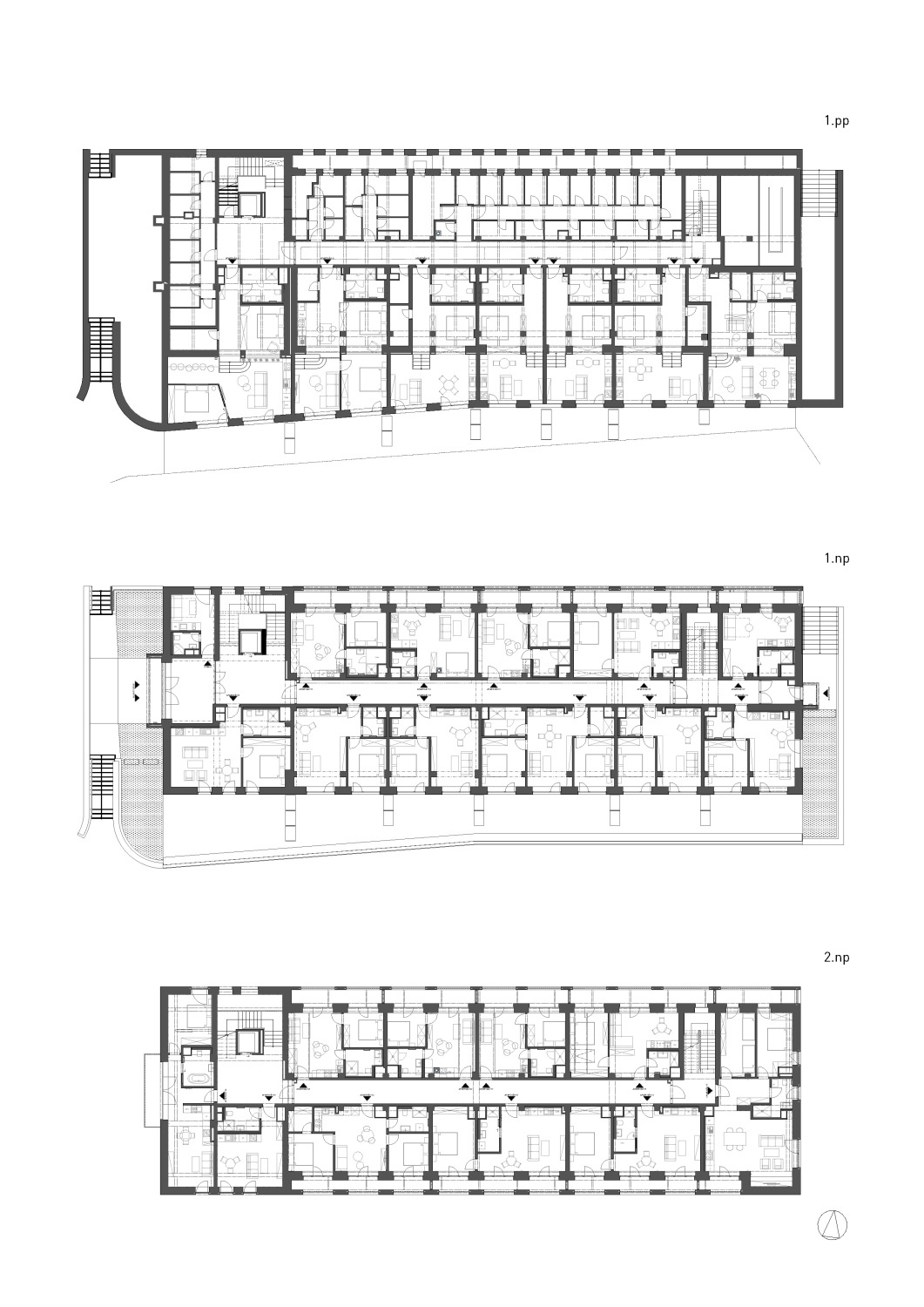
Půdorysy 1.PP, 1.NP, 2.NP. Zdroj: Studio Atrium Architekti
Sdílet na Facebooku Sdílet na Pinterestu
33 / 37
REKLAMA