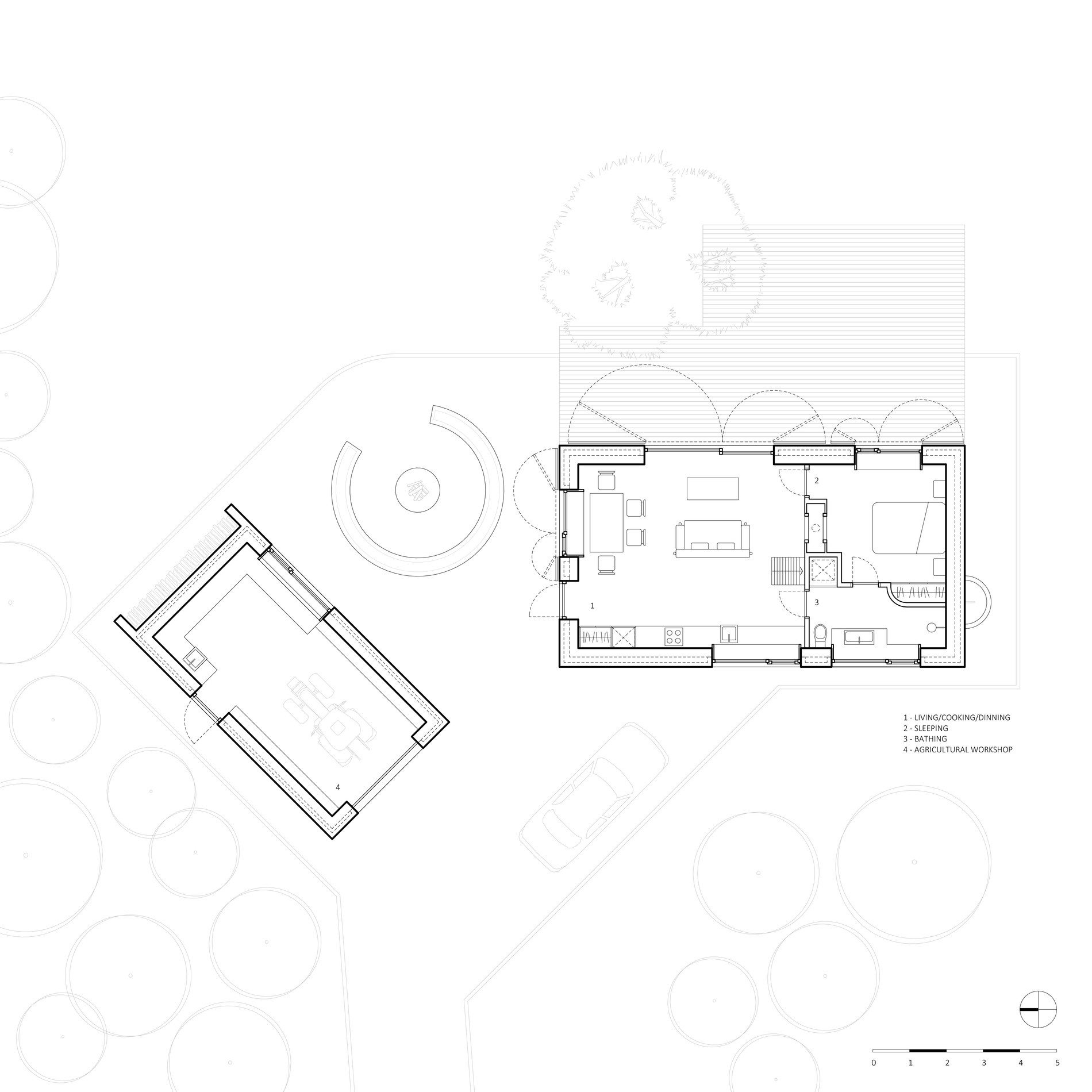
Bydlení pro muže, který sázel stromy. Polský lesní dům korunuje čtvrtstoletí krásné práce
Bydlení pro muže, který sázel stromy. Polský lesní dům korunuje čtvrtstoletí krásné práce. Zdroj: Studio Onu
Sdílet na Facebooku Sdílet na Pinterestu
48 / 53
REKLAMA