Interiér inspirovaný letectvím a oceánem. Dominantou je svítící strop
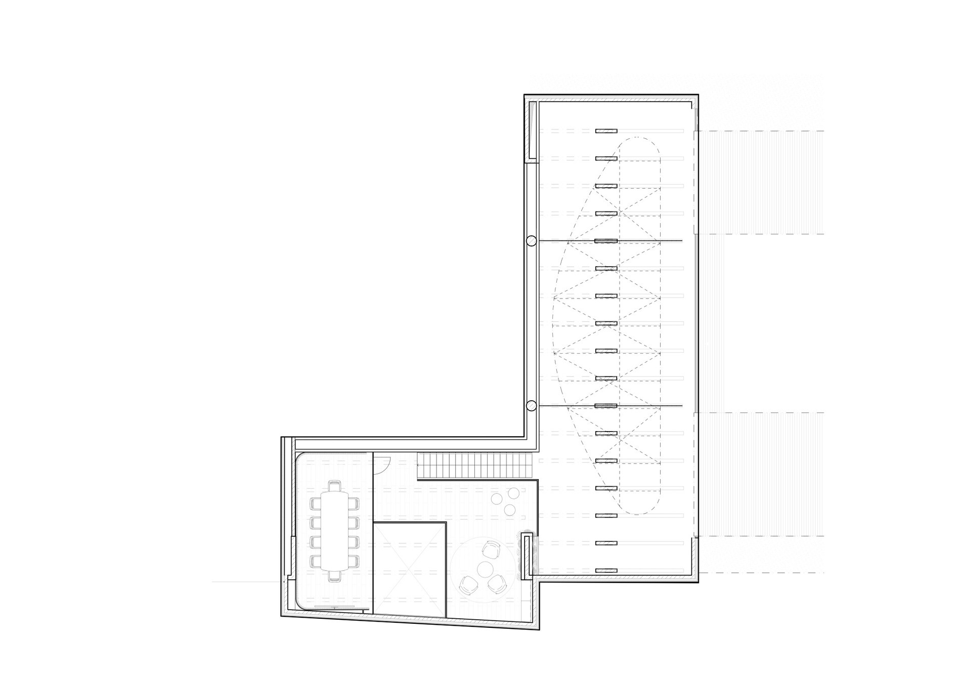
Půdorys galerie. Zdroj: CISARSTUDIO
Sdílet na Facebooku Sdílet na Pinterestu
24 / 27
REKLAMA