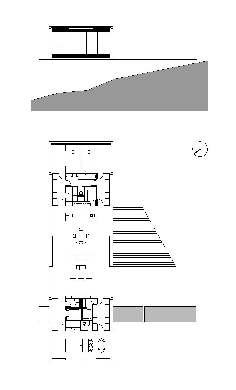
Prudký svah jako výzva: Vila Sidonius vznikla tam, kde by jiní nestavěli
Prudký svah jako výzva: Vila Sidonius vznikla tam, kde by jiní nestavěli. Zdroj: Stempel Tesař architekti
Sdílet na Facebooku Sdílet na Pinterestu
14 / 15
REKLAMA