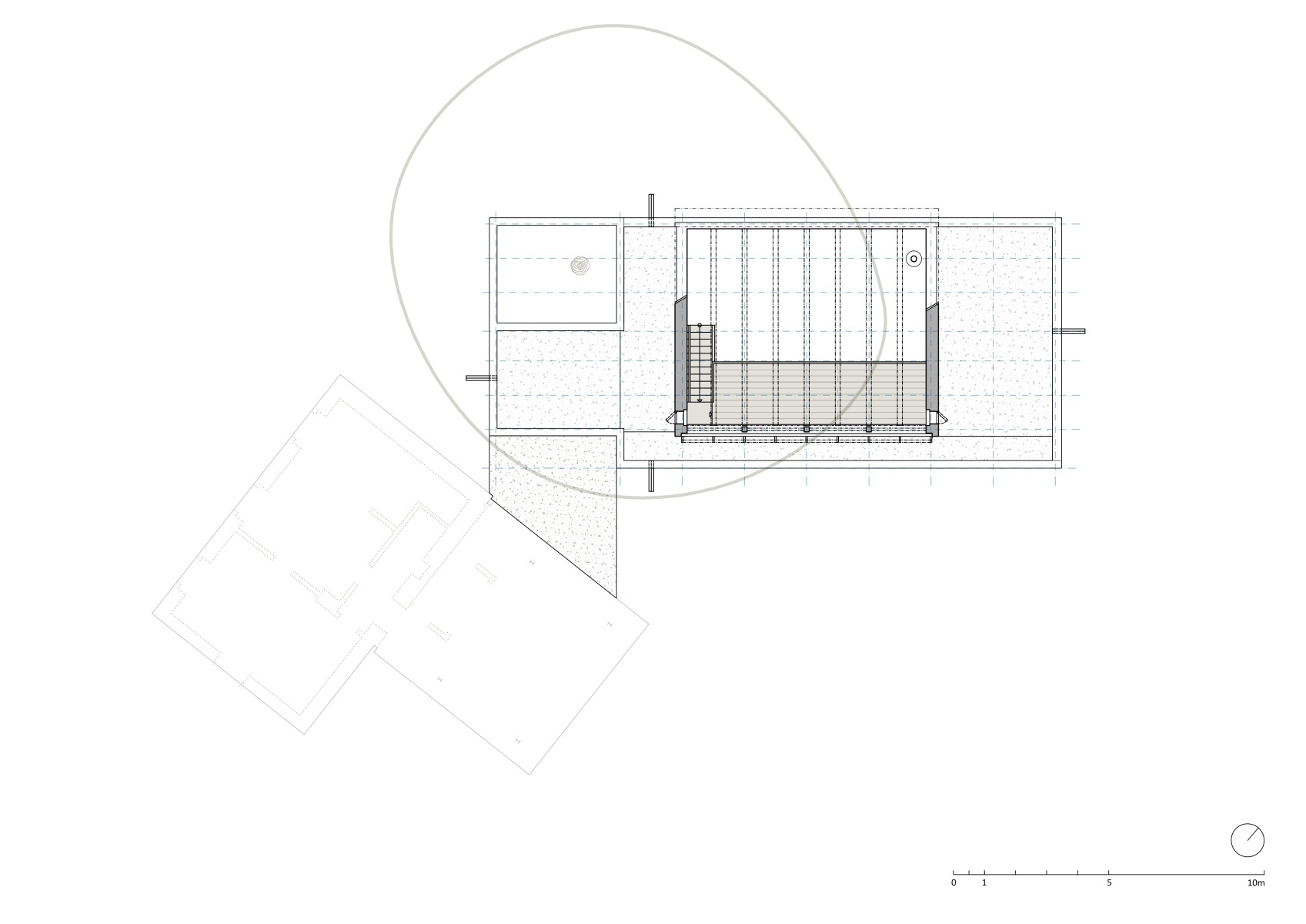
Dům na svahu nad řekou Sázavou
Galerie. Zdroj: Studio päivä architekti
Sdílet na Facebooku Sdílet na Pinterestu
42 / 48
REKLAMA