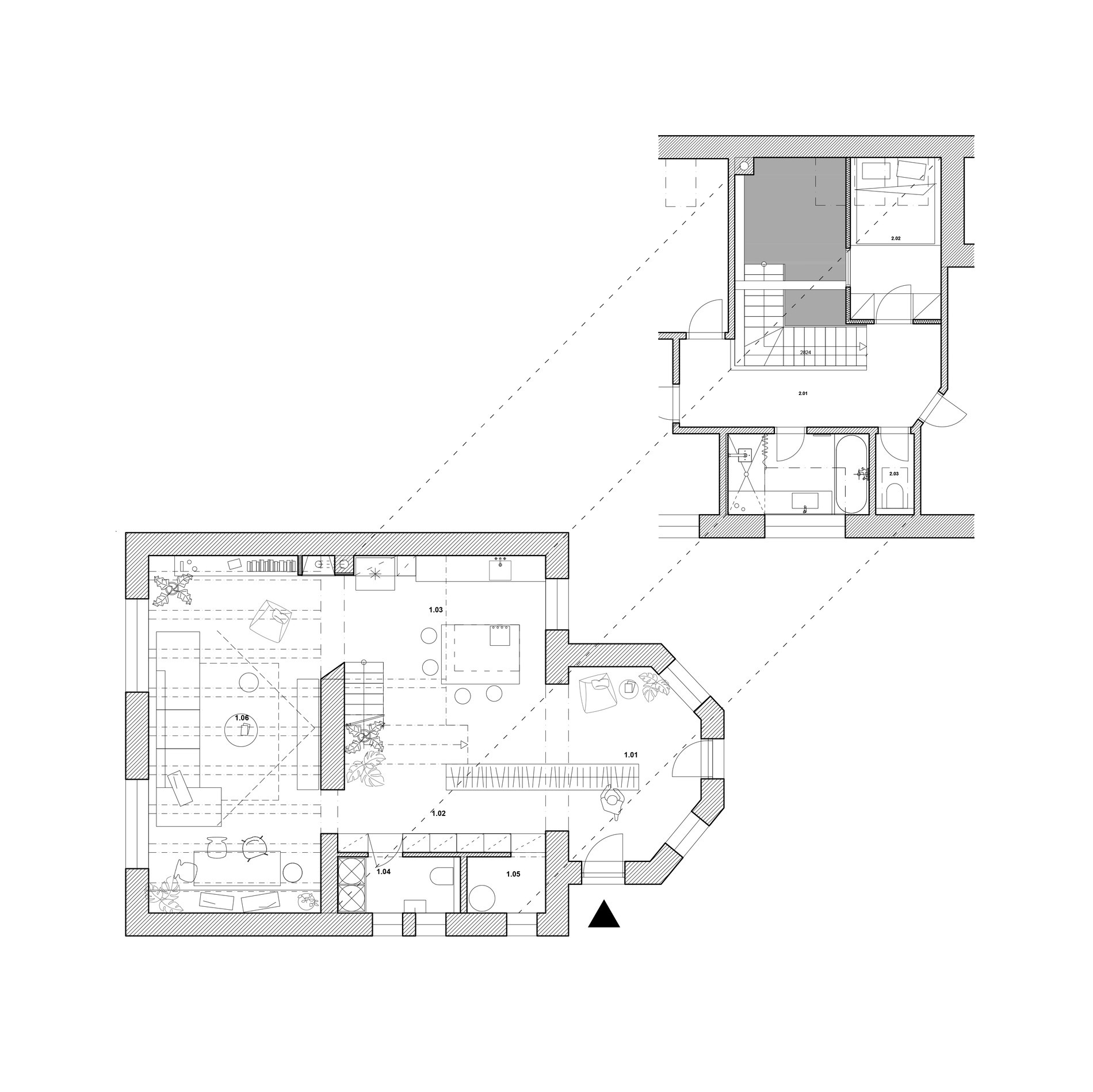
Dům z padesátých let dostal moderní interiér. Panuje zde krása původních cihel a letitého dřeva
Dům z padesátých let dostal moderní interiér. Panuje zde krása původních cihel a letitého dřeva. Zdroj: Ing. arch. Marián Gombarček, DENDRIT
Sdílet na Facebooku Sdílet na Pinterestu
20 / 21
REKLAMA