Atraktivní mezonetový půdní byt
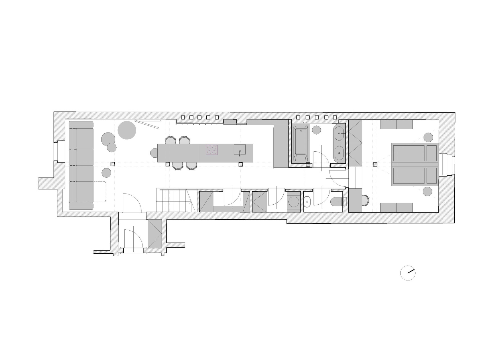
Půdorys. Zdroj: STUDIO FORMAFATAL
Sdílet na Facebooku Sdílet na Pinterestu
21 / 25
REKLAMA