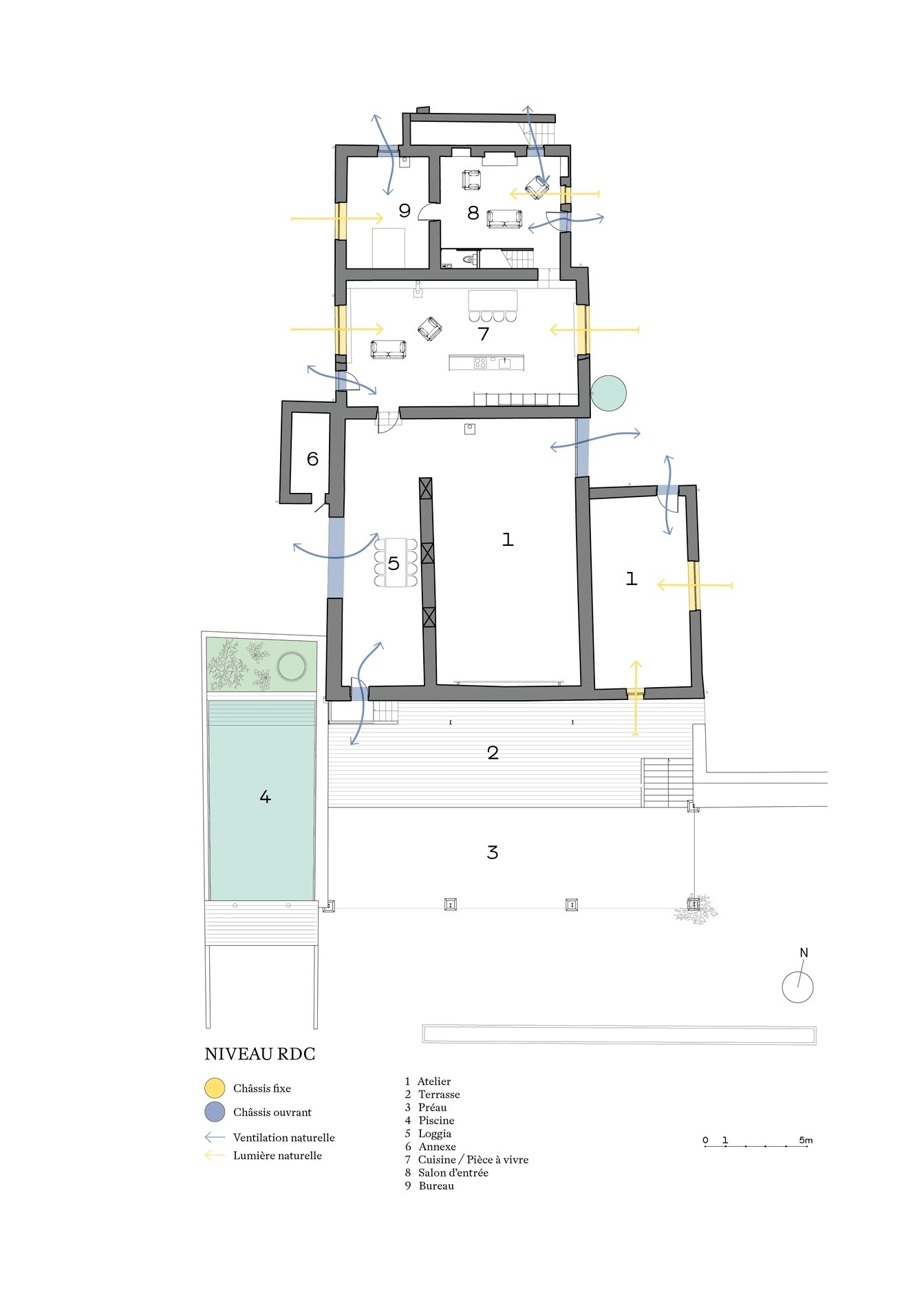
Proměna ruiny na bydlení se stopy historie. Ze zchátralé farmy mají parádní bydlení přirozeně patřící do zdejší krajiny
Ze zchátralé farmy vznikl dům ukotvený v krajině. Proměna ruiny na bydlení se stopy historie. Zdroj: Le Dévéhat Vuarnesson Architectes
Sdílet na Facebooku Sdílet na Pinterestu
32 / 40
REKLAMA