Historickou elektrárnu v Plzni přeměnili na pivovar a víceúčelový sál
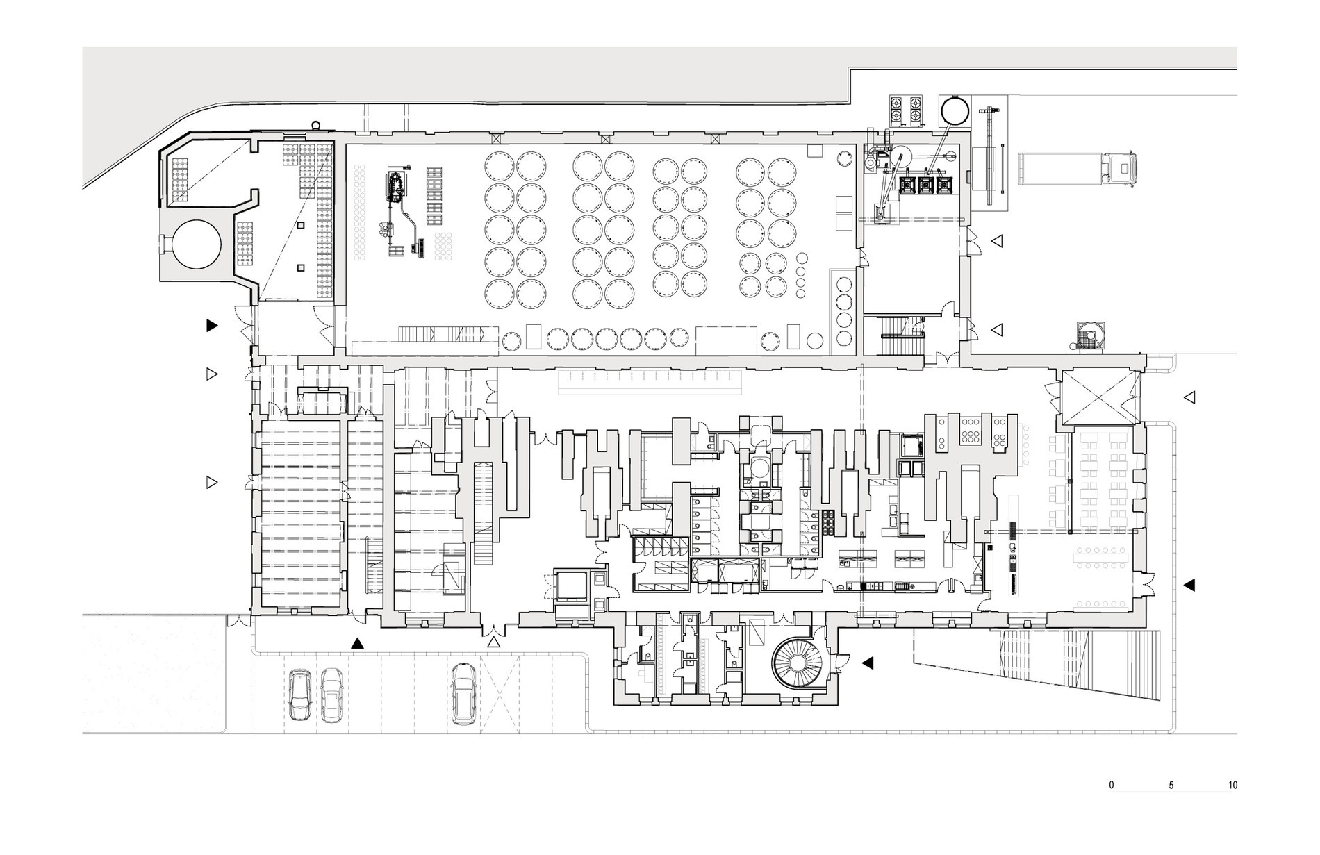
Půdorys 1.NP. Zdroj: STUDIO MIMOSA ARCHITEKTI
Sdílet na Facebooku Sdílet na Pinterestu
32 / 40
REKLAMA