Automatické mlýny v Pardubicích: Industriální klenot vzkřísili. Získal novou funkci
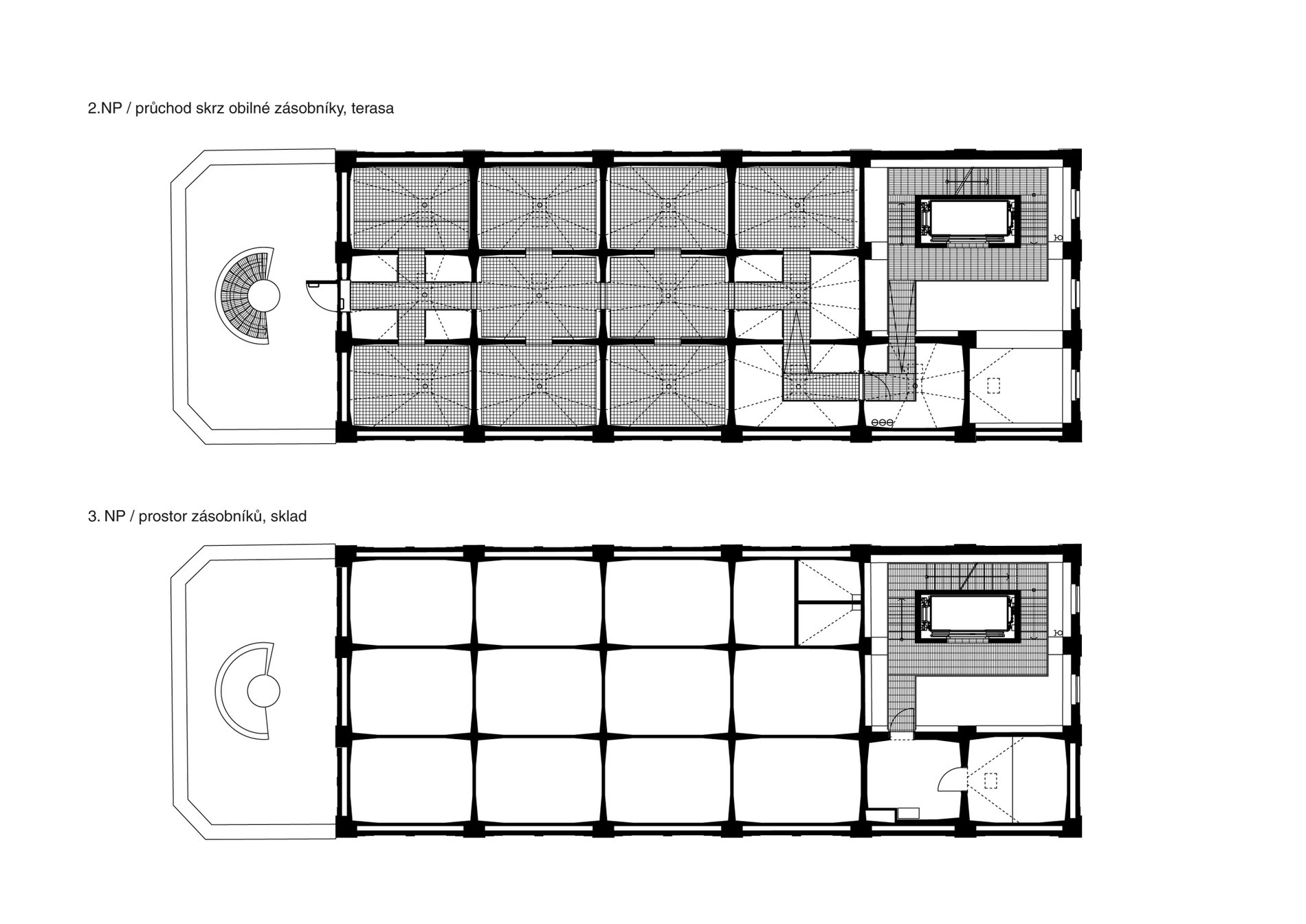
Půdorys 2.NP a 3.NP. Zdroj: STUDIO PROKŠ PŘIKRYL ARCHITEKTI
Sdílet na Facebooku Sdílet na Pinterestu
54 / 67
REKLAMA