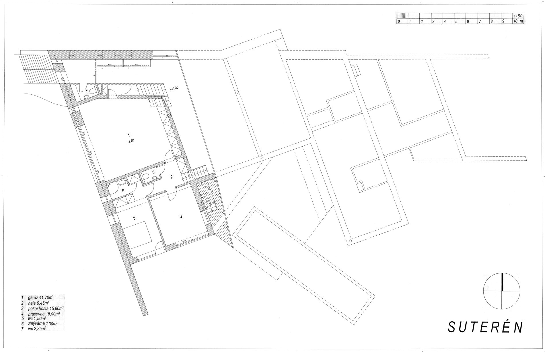
Dům v těsné blízkosti kostela. Připomíná chýši poustevníka. Nenápadně vyrůstá z terénu, aby nerušil barokní monument
Zdroj: Ing. arch. Jan Línek
Sdílet na Facebooku Sdílet na Pinterestu
19 / 21
REKLAMA