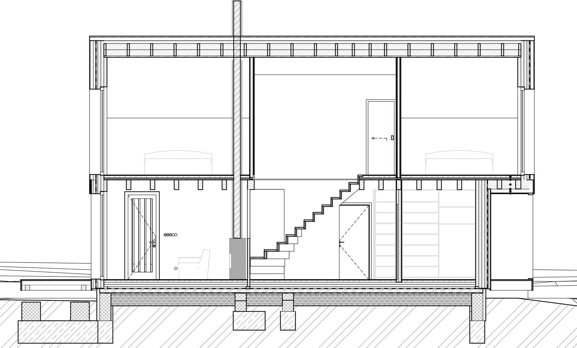
Rekreační chata na Lipně je malý zázrak. Na místě původní chatky vyrostl moderní dům tradičního tvaru
Zdroj: Les Archinautes
Sdílet na Facebooku Sdílet na Pinterestu
58 / 64
REKLAMA