Světlo do nové dvorany proniká skze betonové nosníky. Přestavba menzy Koleje 17. listopadu UK
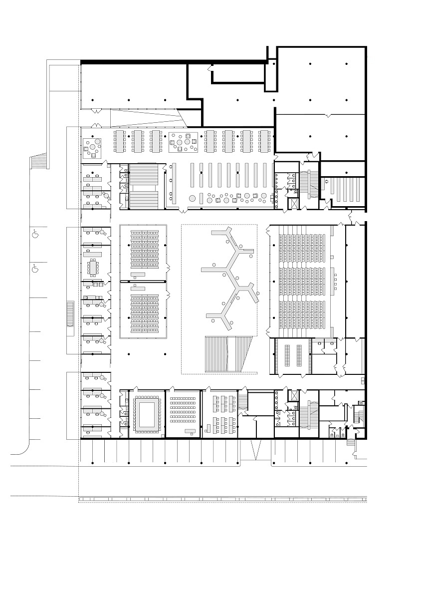
Půdorys 1.PP Zdroj: Kuba & Pilař architekti
Sdílet na Facebooku Sdílet na Pinterestu
31 / 40
REKLAMA